Шкаф для котла westen d

Вопросы подготовительной части, которые не попадают в другие форумы раздела

Автор темы
Chipo
Новичок
Сообщения: 7
Зарегистрирован: 10 фев 2019, 18:13
Откуда: Рязань
Мой котел: Westen quster

Шкаф для котла westen d

Сообщение Chipo »

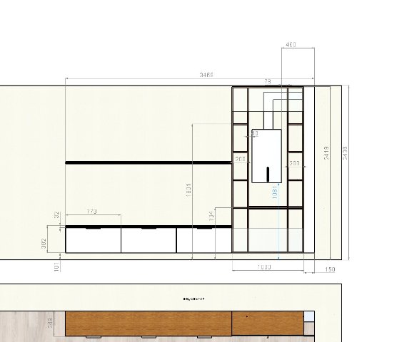
Здравствуйте подскажите по проекту шкафа, вот нарисовал, но в инструкции не могу найти допуски расстояния до стен, безопасна ли такая конструкция, и можно ли верх оставить закрытым или лучше оставить щель для продуха?
Вложения
XEVXl_VnQMQ.jpg
Y4RzG-oxw1I.jpg
88lHidrHCd8.jpg
Ответить
  • Похожие темы
    Ответы
    Просмотры
    Последнее сообщение
  • Борьба с E03 для котла Baxi LUNA3 1.310 Fi
    CA!!!A » » в форуме Дымоудаление и воздухоприток
    4 Ответы
    466 Просмотры
    Последнее сообщение CA!!!A
  • Выход раздельного дымоудаления от конденсационного котла через кровлю
    vkostromin » » в форуме Дымоудаление и воздухоприток
    4 Ответы
    591 Просмотры
    Последнее сообщение Bahus
  • Приток воздуха для котла Baxi LUNA3 1.310 Fi
    KostBro » » в форуме Дымоудаление и воздухоприток
    1 Ответы
    652 Просмотры
    Последнее сообщение Starik
  • Дымоход конденсационного котла из подвала.
    Alexey33 » » в форуме Дымоудаление и воздухоприток
    10 Ответы
    1181 Просмотры
    Последнее сообщение Bahus
  • Совместная работа бойлера котла и бойлера косвенного нагрева
    student1 » » в форуме Другие вопросы проектирования
    4 Ответы
    1236 Просмотры
    Последнее сообщение student1

Вернуться в «Другие вопросы проектирования»

Кто сейчас на конференции

Сейчас этот форум просматривают: нет зарегистрированных пользователей и 15 гостей