Baxi luna Duo-tec Е 40 и внешний бойлер.
Baxi luna Duo-tec Е 40 и внешний бойлер.
Прошу уточнить.
Есть Baxi luna Duo-tec E 40 двухконтурный, но его нужно перевести в одноконтурный режим для отопления с внешним бойлером.
В инструкции на всю линейку вроде пишется что без проблем... только пораметр Р03 поставьте 05 :
ВАЖНО: установите параметр P03 = 05, как описано в главе 14.
А в описании котла пишется что только одноконтурные работают с внешним бойлером.
Кому верить?
Есть Baxi luna Duo-tec E 40 двухконтурный, но его нужно перевести в одноконтурный режим для отопления с внешним бойлером.
В инструкции на всю линейку вроде пишется что без проблем... только пораметр Р03 поставьте 05 :
ВАЖНО: установите параметр P03 = 05, как описано в главе 14.
А в описании котла пишется что только одноконтурные работают с внешним бойлером.
Кому верить?
Последний раз редактировалось sprint33 14 ноя 2021, 21:36, всего редактировалось 1 раз.
-
Bahus
- Главный администратор

- Сообщения: 12887
- Зарегистрирован: 24 июл 2012, 13:05
- Откуда: Пенза
- Мой котел: Пензенская ТЭЦ-1
- Благодарил (а): 81 раз
- Поблагодарили: 1663 раза
- Возраст: 45
Baxi luna Duo-tec+40 и внешний бойлер.
Потому что двухконтурник переводить на бочку - это колхоз, не предусмотренный производителем. Поэтому так и пишут. Но сделать можно и будет работать
Baxi luna Duo-tec+40 и внешний бойлер.
А можно по-подробней про колхоз? У нас пути обратно нет. Что нужно? Выбросить внутренний теплообменник и вывести наружу его трубку вход и подключить к бочке? Или нужно заменить трёхходовой клапан как на одноконтурниках?Bahus писал(а): 14 ноя 2021, 12:15 Потому что двухконтурник переводить на бочку - это колхоз, не предусмотренный производителем. Поэтому так и пишут. Но сделать можно и будет работать
-
Bahus
- Главный администратор

- Сообщения: 12887
- Зарегистрирован: 24 июл 2012, 13:05
- Откуда: Пенза
- Мой котел: Пензенская ТЭЦ-1
- Благодарил (а): 81 раз
- Поблагодарили: 1663 раза
- Возраст: 45
Baxi luna Duo-tec Е 40 и внешний бойлер.
Ставится внешний трехходовой клапан, на него свой мотор. Внутренний клапан блокируем в положение "только отопление" и забывает про это всё. Ну и про теплообменник с датчиками ГВС. Можно использовать родной мотор, но тогда нужна спецзаглушка, чтобы родной трехход зафиксировать.
Тут уже неоднократно о такой переделке писалось. Используйте поиск. Варьируется там только модель котла. Всё остальное идентично.
Тут уже неоднократно о такой переделке писалось. Используйте поиск. Варьируется там только модель котла. Всё остальное идентично.
Baxi luna Duo-tec Е 40 и внешний бойлер.
Спасибо, идея ясна...но думаю мы на трёхходовом клапане соеденим вход и выход на теплообменник.Bahus писал(а): 16 ноя 2021, 10:19 Ставится внешний трехходовой клапан, на него свой мотор. Внутренний клапан блокируем в положение "только отопление" и забывает про это всё. Ну и про теплообменник с датчиками ГВС. Можно использовать родной мотор, но тогда нужна спецзаглушка, чтобы родной трехход зафиксировать.
Тут уже неоднократно о такой переделке писалось. Используйте поиск. Варьируется там только модель котла. Всё остальное идентично.
Теплообменник уже сняли.
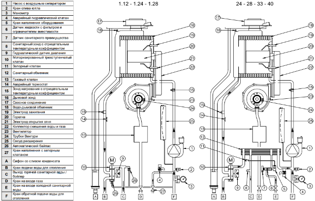
А зачем на одноконтурниках аж два байпаса стоит? На двухконтурниках их нет вообще....
-
Bahus
- Главный администратор

- Сообщения: 12887
- Зарегистрирован: 24 июл 2012, 13:05
- Откуда: Пенза
- Мой котел: Пензенская ТЭЦ-1
- Благодарил (а): 81 раз
- Поблагодарили: 1663 раза
- Возраст: 45
Baxi luna Duo-tec Е 40 и внешний бойлер.
А зачем они здесь нужны?
На случай если вся система забита?
На одноконтурниках нарисовано два, 26 позиция.
На двухконтурниках не видно.
Вопрос то в том , нужно ли нам этот байпас ставить при выкинутом внутреннем теплообменнике?
-
Bahus
- Главный администратор

- Сообщения: 12887
- Зарегистрирован: 24 июл 2012, 13:05
- Откуда: Пенза
- Мой котел: Пензенская ТЭЦ-1
- Благодарил (а): 81 раз
- Поблагодарили: 1663 раза
- Возраст: 45
Baxi luna Duo-tec Е 40 и внешний бойлер.
Коряво выразился. Имелось ввиду, что во всех настенных котлах Baxi есть байпас. Необходим для поддержания постоянного значения расхода теплоносителя через теплообменник. Почему его на схеме не отрисовывают сейчас - не очень понятно. Наверное потому что и отрисовывать негде. В двухконтурных котлах байпас реализован через вторичный теплообменник, а сам регулятор установлен в левой гидрогруппе.
Baxi luna Duo-tec Е 40 и внешний бойлер.
Ну не знаю.... мы уже весь котёл разобрали, нету нигде байпаса в этом двухконтурном котле....Bahus писал(а): 17 ноя 2021, 10:05 Коряво выразился. Имелось ввиду, что во всех настенных котлах Baxi есть байпас. Необходим для поддержания постоянного значения расхода теплоносителя через теплообменник. Почему его на схеме не отрисовывают сейчас - не очень понятно. Наверное потому что и отрисовывать негде. В двухконтурных котлах байпас реализован через вторичный теплообменник, а сам регулятор установлен в левой гидрогруппе.
Вот планируем два этих канала соеденить и оставить родной трёхходовой.
А на правой группе заглушки поставить.
Вот и не понятно с байпасом, получается его нет и не будет, а одноконтурниках стоит...
Последний раз редактировалось sprint33 19 ноя 2021, 10:38, всего редактировалось 1 раз.
-
Bahus
- Главный администратор

- Сообщения: 12887
- Зарегистрирован: 24 июл 2012, 13:05
- Откуда: Пенза
- Мой котел: Пензенская ТЭЦ-1
- Благодарил (а): 81 раз
- Поблагодарили: 1663 раза
- Возраст: 45
Baxi luna Duo-tec Е 40 и внешний бойлер.
Ещё раз. Байпас идет по вторичному теплообменнику. Управляет распределением потоков картридж трёхходового, на котором у вас привод стоял. Вон он справа на картинке торчит.
На одноконтурных нет картриджа в привычном понимании. Там по-другому сделан этот узел - две тарелки с пружинами с разных сторон гидрогруппы. Ну и поскольку нет теплообменника - вместо него трубки медные.
К слову. Если объединить два отверстия с одной стороны - вы объединяете один контур с другим. Ибо структура теплообменника диагональная противоточная.
На одноконтурных нет картриджа в привычном понимании. Там по-другому сделан этот узел - две тарелки с пружинами с разных сторон гидрогруппы. Ну и поскольку нет теплообменника - вместо него трубки медные.
К слову. Если объединить два отверстия с одной стороны - вы объединяете один контур с другим. Ибо структура теплообменника диагональная противоточная.
Baxi luna Duo-tec Е 40 и внешний бойлер.
Про какал байпаса понятно. Не понятно про клапан.Bahus писал(а): 17 ноя 2021, 16:17 Ещё раз. Байпас идет по вторичному теплообменнику. Управляет распределением потоков картридж трёхходового, на котором у вас привод стоял. Вон он справа на картинке торчит.
На одноконтурных нет картриджа в привычном понимании. Там по-другому сделан этот узел - две тарелки с пружинами с разных сторон гидрогруппы. Ну и поскольку нет теплообменника - вместо него трубки медные.
К слову. Если объединить два отверстия с одной стороны - вы объединяете один контур с другим. Ибо структура теплообменника диагональная противоточная.
В этом двухконтурном котле физически нет клапана ни в левой ни в правой группе.
Но мы же фактически переделываем его в одноконтурный.
А в одноконтурном стоит клапан и канал байпаса.
Так вот и вопрос : нужно ли ставить дополнительно клапан и канал при переделке его в одноконтурный.
Или этот байпас работает только когда одноконтурный котёл используется без гвс ?
-
Bahus
- Главный администратор

- Сообщения: 12887
- Зарегистрирован: 24 июл 2012, 13:05
- Откуда: Пенза
- Мой котел: Пензенская ТЭЦ-1
- Благодарил (а): 81 раз
- Поблагодарили: 1663 раза
- Возраст: 45
Baxi luna Duo-tec Е 40 и внешний бойлер.
Третий раз.sprint33 писал(а): 19 ноя 2021, 10:34 В этом двухконтурном котле физически нет клапана ни в левой ни в правой группе.
В двухконтурном котле функцию клапана байпаса выполняет картридж трехходового. А функцию канала - вторичный теплообменник.
Как ещё объяснить-то?
-
- Похожие темы
- Ответы
- Просмотры
- Последнее сообщение
Кто сейчас на конференции
Сейчас этот форум просматривают: нет зарегистрированных пользователей и 1 гость