Работа трехходового клапана - проходит полный круг
-
Nadimanov
- Новичок
- Сообщения: 12
- Зарегистрирован: 16 апр 2025, 23:06
- Откуда: Московская область
- Мой котел: Baxi Ampera Plus 12
Работа трехходового клапана - проходит полный круг
Котел Baxi Ampera Plus 12 + управление через Baxi Connect
Трехходовой клапан Thermex dLine T
Проблема - при переключении мотор трехходового делает оборот 180 градусов (а не 90 как должен).
Начал разбираться, тестером определил, что один из контактов на клемме х10 всегда под напряжением - на второй контакт приходит дополнительно, а не вместо.
В моем понимании работать трехходовой должен так: три провода, один "0", две фазы - которые переключаются последовательно при смене режимов ГВС и Отопление. Мозги дают напряжение на один из контактов, срабатывает моторчик, диск в моторе делает оборот 90°, лапка контакта с напряжением прячется в выемку, контакт с напряжением размыкается. И дальше так стоит пока не придёт напряжение с другого контакта.
В моем случае оба контакта за каким то лешим оказываютя под напряжением, соответственно мотор крутится, но когда нужная лапка размыкается напряжение с мотора не уходит и он проделывает еще один оборот, то есть делает 180°, после чего снова размыкается лапка контакта который всегжа под напряжением.
Не могу понять и устранить. Проблема возникла вчера, дом перегрелся.
Трехходовой клапан Thermex dLine T
Проблема - при переключении мотор трехходового делает оборот 180 градусов (а не 90 как должен).
Начал разбираться, тестером определил, что один из контактов на клемме х10 всегда под напряжением - на второй контакт приходит дополнительно, а не вместо.
В моем понимании работать трехходовой должен так: три провода, один "0", две фазы - которые переключаются последовательно при смене режимов ГВС и Отопление. Мозги дают напряжение на один из контактов, срабатывает моторчик, диск в моторе делает оборот 90°, лапка контакта с напряжением прячется в выемку, контакт с напряжением размыкается. И дальше так стоит пока не придёт напряжение с другого контакта.
В моем случае оба контакта за каким то лешим оказываютя под напряжением, соответственно мотор крутится, но когда нужная лапка размыкается напряжение с мотора не уходит и он проделывает еще один оборот, то есть делает 180°, после чего снова размыкается лапка контакта который всегжа под напряжением.
Не могу понять и устранить. Проблема возникла вчера, дом перегрелся.
-
Starik
- Местный аксакал
- Сообщения: 7420
- Зарегистрирован: 27 ноя 2015, 22:41
- Откуда: Краснодарский край
- Мой котел: BAXI MAIN 5 14f
- Благодарил (а): 73 раза
- Поблагодарили: 819 раз
- Возраст: 59
Работа трехходового клапана - проходит полный круг
С котла правильно подается напряжение (на нужный контакт в данный момент)?
-
Nadimanov
- Новичок
- Сообщения: 12
- Зарегистрирован: 16 апр 2025, 23:06
- Откуда: Московская область
- Мой котел: Baxi Ampera Plus 12
Работа трехходового клапана - проходит полный круг
На контакте ЦО всегда сидит напряжение. На контакте ГВС появляется, если входит в режим ГВС, но с ЦО напряжение не уходит. Поэтому когда начинает жужжать мотор трехходового, он делает два щелчка - первые 90°, но так как напряжение на контакте ЦО всегда - сразу делает еще 90° пока его не разомкнет
Отправлено спустя 3 минуты 39 секунд:
Вот фото контакной группы
-
Starik
- Местный аксакал
- Сообщения: 7420
- Зарегистрирован: 27 ноя 2015, 22:41
- Откуда: Краснодарский край
- Мой котел: BAXI MAIN 5 14f
- Благодарил (а): 73 раза
- Поблагодарили: 819 раз
- Возраст: 59
Работа трехходового клапана - проходит полный круг
Остальная информация не имеет значения. Вывод не утешительный для тебя - проблема в плате котла. Может на ней релюха СО заклинила, может и ещё чего хуже.Nadimanov писал(а): 25 окт 2025, 10:57На контакте ГВС появляется, если входит в режим ГВС, но с ЦО напряжение не уходит.
-
Nadimanov
- Новичок
- Сообщения: 12
- Зарегистрирован: 16 апр 2025, 23:06
- Откуда: Московская область
- Мой котел: Baxi Ampera Plus 12
Работа трехходового клапана - проходит полный круг
Видится что единственный варинат это сервисников вызывать, чтобы смотрели на месте.
Еще обнаружил у себя интересную особенность монтажа трехходового.
Согласно схеме Thermex слева выход на ГВС, справа на ЦО.
У меня же смонтировано наоборот. Как будто те кто устанавливал решили это рокировкой контактов привода. Но все же.
Отправлено спустя 2 минуты 58 секунд:
На втором фото не видно бирки, качество пр загрузке падает. Но суть в том, что слева у меня отопление, справа - ГВС
-
Starik
- Местный аксакал
- Сообщения: 7420
- Зарегистрирован: 27 ноя 2015, 22:41
- Откуда: Краснодарский край
- Мой котел: BAXI MAIN 5 14f
- Благодарил (а): 73 раза
- Поблагодарили: 819 раз
- Возраст: 59
Работа трехходового клапана - проходит полный круг
Это правильное решение.
Перемена мест слагаемых не могла привести к поломке платы. Тут важнее мощность привода треххода (сила тока убивает контакты реле).
-
Bahus
- Главный администратор

- Сообщения: 12969
- Зарегистрирован: 24 июл 2012, 13:05
- Откуда: Пенза
- Мой котел: Пензенская ТЭЦ-1
- Благодарил (а): 82 раза
- Поблагодарили: 1682 раза
- Возраст: 45
Работа трехходового клапана - проходит полный круг
Обычно всегда так и было. Справа ГВС, слева отопление. Почему Термекс решил наоборот выполнить - загадка. Но сути это действительно не меняет.Nadimanov писал(а): 25 окт 2025, 11:23 Согласно схеме Thermex слева выход на ГВС, справа на ЦО.
У меня же смонтировано наоборот. Как будто те кто устанавливал решили это рокировкой контактов привода. Но все же.
Не было, вдруг, аномалий каких-то с электричеством дома?
А может настройки какие меняли? В частности пункт 10 раздела монтажника. Так-то там вроде ничего такого нет. Но может есть смысл попробовать повыключать-повключать, заодно проверить что там с напряжением на клеммах будет. Ну и пиктограммка на дисплее, чего там с ней будет.
А, кстати. Имеет смысл на время Зонт отключить. Может с него ерунда какая прилетает.
В ЛС отвечаю только по работе форума
Илья Бахталин
АСЦ BAXI "Санфорт". г. Пенза
Подключение к Зонту - bahus1980
Илья Бахталин
АСЦ BAXI "Санфорт". г. Пенза
Подключение к Зонту - bahus1980
-
Nadimanov
- Новичок
- Сообщения: 12
- Зарегистрирован: 16 апр 2025, 23:06
- Откуда: Московская область
- Мой котел: Baxi Ampera Plus 12
Работа трехходового клапана - проходит полный круг
Да в том то и западня, что все было штатно. Сижу себе на работе, а жена звонит жалуется, что печка.Bahus писал(а): 25 окт 2025, 12:36 Не было, вдруг, аномалий каких-то с электричеством дома?
А может настройки какие меняли?
-
Bahus
- Главный администратор

- Сообщения: 12969
- Зарегистрирован: 24 июл 2012, 13:05
- Откуда: Пенза
- Мой котел: Пензенская ТЭЦ-1
- Благодарил (а): 82 раза
- Поблагодарили: 1682 раза
- Возраст: 45
Работа трехходового клапана - проходит полный круг
Попробуйте, всё-таки, отключить Зонт и подёргать настройки 10.1.
Может даже с перезагрузкой котла принудительно.
Хороший стук он же наружу выйдет. И есть подозрение, что здесь он именно хороший. Главное локализовать.
А, вот ещё что. Если не поможет софтверно.
Откройте, сфотайте плату. Посмотрим обвязку цепи мотора. Может там какие мысли возникнут
Может даже с перезагрузкой котла принудительно.
Хороший стук он же наружу выйдет. И есть подозрение, что здесь он именно хороший. Главное локализовать.
А, вот ещё что. Если не поможет софтверно.
Откройте, сфотайте плату. Посмотрим обвязку цепи мотора. Может там какие мысли возникнут
В ЛС отвечаю только по работе форума
Илья Бахталин
АСЦ BAXI "Санфорт". г. Пенза
Подключение к Зонту - bahus1980
Илья Бахталин
АСЦ BAXI "Санфорт". г. Пенза
Подключение к Зонту - bahus1980
-
Nadimanov
- Новичок
- Сообщения: 12
- Зарегистрирован: 16 апр 2025, 23:06
- Откуда: Московская область
- Мой котел: Baxi Ampera Plus 12
Работа трехходового клапана - проходит полный круг
Попробовал, при отключении Зотна никаких видимых изменений. Затем лезу в 10.1, начинаю там менять задержку - тоже без изменений.Nadimanov писал(а): 25 окт 2025, 10:17 Попробуйте, всё-таки, отключить Зонт и подёргать настройки 10.1.
Затем ставлю зажержку "0" и тут привод начинает жужжать. Но не тут то было. Он входит в замкнутый цикл, крутит без остановки - шток привода гуляет вверх-вниз, вверх-вниз и так без конца. Одновременно с этим тестером смотрю контакты фишки х10 - наряжение есть на обоих фазовых контактах. Меняю в 10.1 настройку на какое-то любое число, отличное от "0" - привод затихает.
Отправлено спустя 14 минут 21 секунду:
Вот:
-
Bahus
- Главный администратор

- Сообщения: 12969
- Зарегистрирован: 24 июл 2012, 13:05
- Откуда: Пенза
- Мой котел: Пензенская ТЭЦ-1
- Благодарил (а): 82 раза
- Поблагодарили: 1682 раза
- Возраст: 45
Работа трехходового клапана - проходит полный круг
Офигеть. Что-то твердотельное всё. Посмотрите по дорожкам, если получится, откуда идёт контакт ЦО. Ну на котором постоянно напряжение.
Отправлено спустя 1 минуту 34 секунды:
Гарантия на котёл ещё действует?
Отправлено спустя 1 минуту 34 секунды:
Гарантия на котёл ещё действует?
В ЛС отвечаю только по работе форума
Илья Бахталин
АСЦ BAXI "Санфорт". г. Пенза
Подключение к Зонту - bahus1980
Илья Бахталин
АСЦ BAXI "Санфорт". г. Пенза
Подключение к Зонту - bahus1980
-
Nadimanov
- Новичок
- Сообщения: 12
- Зарегистрирован: 16 апр 2025, 23:06
- Откуда: Московская область
- Мой котел: Baxi Ampera Plus 12
Работа трехходового клапана - проходит полный круг
Тут мои полномочия всё, как говорится.
Снял плату, повез на диагностику. Вердикт - дело в ней родимой, надо перепаивать, ждем запчасти до 5 ноября. Только там не реле, а ка4 то по другому мастер их назвал. Пока будет работать через обходное решение.
Главный вопрос, не случится лиеще раз и почему вообще это так случилось.
Отправлено спустя 12 минут 21 секунду:
В общем диагностика 2к, перепайка работа и з/ч - 5к. Итого цена поломки 7к.
Основная версия причины - скачок напряжения. Порекомендовал поставить стаб, но не на весь котел, а только на плату. Говорит 300ватного должно хватить за глаза.
Кто нибудь о таком слышал?
-
Starik
- Местный аксакал
- Сообщения: 7420
- Зарегистрирован: 27 ноя 2015, 22:41
- Откуда: Краснодарский край
- Мой котел: BAXI MAIN 5 14f
- Благодарил (а): 73 раза
- Поблагодарили: 819 раз
- Возраст: 59
Работа трехходового клапана - проходит полный круг
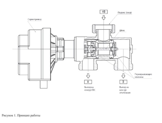
Ты инструкцию принципиально не читаешь? Там даже картинка есть куда и что подключается.
-
Nadimanov
- Новичок
- Сообщения: 12
- Зарегистрирован: 16 апр 2025, 23:06
- Откуда: Московская область
- Мой котел: Baxi Ampera Plus 12
Работа трехходового клапана - проходит полный круг
Измусолил вдоль и поперёк, но наизусь не учил
Вопрос на ходу был задан, если там это есть - вкликолепно, обязательно изучу
Отправлено спустя 9 минут 52 секунды:
Ну собственно все верно - в схеме есть, но вопрос то был скорее в другом. Получить обратную связь от тех кто ставил - что поставили, какой, как ведет себя. Этого как раз в инструкции нет)
-
Bahus
- Главный администратор

- Сообщения: 12969
- Зарегистрирован: 24 июл 2012, 13:05
- Откуда: Пенза
- Мой котел: Пензенская ТЭЦ-1
- Благодарил (а): 82 раза
- Поблагодарили: 1682 раза
- Возраст: 45
Работа трехходового клапана - проходит полный круг
Официальный ответНа данных котлах по умолчанию управляющая фаза на трехходовой клапан подаётся в течение 5 сек (в настройках можно сделать постоянной). В вашем случае управляющая фаза (отопление) не отключается , это говорит о выходе из строя контроллера.
По факту заменить один элемент. А вот за то, чтобы понять какой, с вас 7 кило рублей и сняли.
Коллеги склоняются к тому, что это что-то внешнее и не проблема производителя. Так что о гарантии речь не идёт
Отправлено спустя 3 минуты 16 секунд:
плата подключается отдельно, ТЭНы отдельно. Соответственно на электронику достаточно самого маленького стабилизатора. Тот же Теплоком релейный можно поставить. 222 или 555. Ну или инверторный от Baxi или Штиля, или Бастиона
Отправлено спустя 13 минут 2 секунды:
Общий релейный, а пробрасывается на ЦО или ГВС, в зависимости от потребности?
Да. Так как при работе с трехходовым клапаном достаточно его переключить. А далее напряжение на контактах не требуется.
Случаи, подобные описанному Вами, уже были.
В ЛС отвечаю только по работе форума
Илья Бахталин
АСЦ BAXI "Санфорт". г. Пенза
Подключение к Зонту - bahus1980
Илья Бахталин
АСЦ BAXI "Санфорт". г. Пенза
Подключение к Зонту - bahus1980
-
Nadimanov
- Новичок
- Сообщения: 12
- Зарегистрирован: 16 апр 2025, 23:06
- Откуда: Московская область
- Мой котел: Baxi Ampera Plus 12
Работа трехходового клапана - проходит полный круг
Bahus,
Илья, спасибо большое. Будем делать, значит.
Отправлено спустя 21 минуту 45 секунд:
Илья, спасибо большое. Будем делать, значит.
Отправлено спустя 21 минуту 45 секунд:
Когда сам тумба-юмба в вопросе, приходится платить рублем, есть такое делоNadimanov писал(а): 25 окт 2025, 10:17 А вот за то, чтобы понять какой, с вас 7 кило рублей и сняли.
-
- Похожие темы
- Ответы
- Просмотры
- Последнее сообщение
Кто сейчас на конференции
Сейчас этот форум просматривают: нет зарегистрированных пользователей и 0 гостей