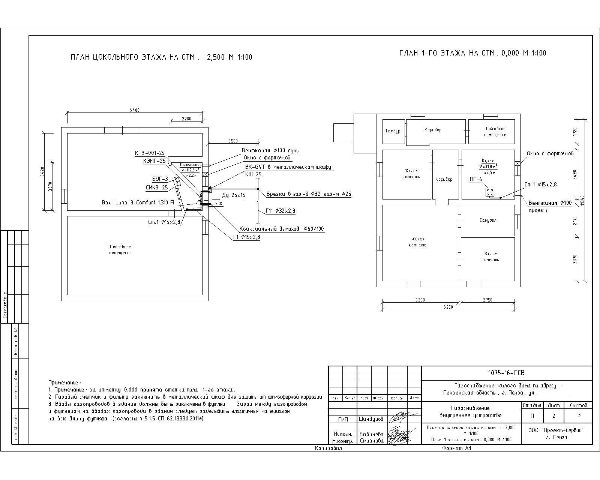
Заказал проект газоснабжения в организации. Согласно проекту, сделали котельную в цокольном этаже (чертеж прилагаю-план дома). Проект согласован у местных газовиков в "Метане" и на данный момент согласно этому проекту сделаны строительно монтажные работы по газоснабжению. После этого, я посмотрел, что коаксиальная труба дымохода получается на уровне 20-30 см над землей и задумался над вопросом, что она низковата и возможно ее будет заносить снегом..дай ка думаю посмотрю, как люди решают данную проблему..и тут выясняется, что согласно снипам коаксиальный дымоход должен располагаться на высоте минимум 2 метра.. Но мне и в голову не могло придти, что лицензированная проектная организация может сделать проект, а данных норм снипов не знает!
Собственно вопросы.
1 На данный момент оптимальным решением проблемы мне видится следующая реализация- вывести от котла через плиту перекрытия с цокольного этажа вертикально коаксиальный дымоход (2 метра) на первый (попадаем в нежилое помещение-кухню) и отводом под 90 градусов через фасад на улицу - 1 метр(рисунок прилагаю-дымоход через перекрытие).
Подскажите возможна ли такая схема?
2 Дальше по реализации, если возможна...
Длина дымохода 3 метра, 1 изгиб под 90 градусов. Получается на пределе рассчетных характеристик для данного котла при реализации коаксиальными трубами 60/100. Как лучше сделать? Оставить трубы 60/100, провести коаксиальный дымоход трубами 80/125, сделать раздельными трубами или с забором воздуха из помещения?
3 Будет ли при такой реализации конденсат и будет ли он влиять на работу котла? Как минимизировать?
4 В проектной организации предлагают провести дымоход по улице, скинули мне рисунок (во вложении-дымоход). Мягко говоря, сомневаюсь в их компетенции.. Рабочий ли это вариант и намного ли дороже он мне обойдется?
