Baxi Main 24 Fi падает ли давление?
-
jolkijam
- Новичок
- Сообщения: 19
- Зарегистрирован: 25 окт 2018, 13:15
- Откуда: vladimir
- Мой котел: baxi main 24 fi
- Благодарил (а): 2 раза
Baxi Main 24 Fi падает ли давление?
Здравствуйте форумчани ,нужна ваша помощь.Есть котел Baxi маин 24 fi (возраст 10 лет ) в однушке (36кв.м) Вообщем проблема такая , если не пользоваться котлом (отоплением и горячей водой ) то за ночь (в холодное время суток) начинает мигать ошибка о недостаточном давление (стрелка находится в зеленой зоне на манометре ) приходится подкачивать не много и котел начинает нормально работать
что может быть не исправным ? или может что-то почистить надо
куплен внешний бак на 8 литров ,сделан штуцер переходной с резьбы М14х1 (а именно такая резьба на расширительном баке котла Baxi main 24 fi) на резьбу G 1/2 , но штуцер не получается закрутить в том месте где родной бак соединяется с системой отопление в следствии того что хрен подлезишь ключом ,мастер который приходил ,говорит не держит нипель на РБ
бюджет сильно ограничен и нет возможности менять всё подряд на обум
при включение отопления (даже 70-80 градусов) давление на манометре не поднимается и не выходит из зеленой зоны
при 40-50 градусах тоже проблем никаких нет
что может быть не исправным ? или может что-то почистить надо
куплен внешний бак на 8 литров ,сделан штуцер переходной с резьбы М14х1 (а именно такая резьба на расширительном баке котла Baxi main 24 fi) на резьбу G 1/2 , но штуцер не получается закрутить в том месте где родной бак соединяется с системой отопление в следствии того что хрен подлезишь ключом ,мастер который приходил ,говорит не держит нипель на РБ
бюджет сильно ограничен и нет возможности менять всё подряд на обум
при включение отопления (даже 70-80 градусов) давление на манометре не поднимается и не выходит из зеленой зоны
при 40-50 градусах тоже проблем никаких нет
-
Starik
- Местный аксакал
- Сообщения: 7457
- Зарегистрирован: 27 ноя 2015, 22:41
- Откуда: Краснодарский край
- Мой котел: BAXI MAIN 5 14f
- Благодарил (а): 73 раза
- Поблагодарили: 820 раз
- Возраст: 59
Baxi Main 24 Fi падает ли давление?
Почитай последний пост https://www.baxi.ru/forum/viewtopic.php ... 0&start=30, может мастер сумеет соорудить. 
-
Starik
- Местный аксакал
- Сообщения: 7457
- Зарегистрирован: 27 ноя 2015, 22:41
- Откуда: Краснодарский край
- Мой котел: BAXI MAIN 5 14f
- Благодарил (а): 73 раза
- Поблагодарили: 820 раз
- Возраст: 59
Baxi Main 24 Fi падает ли давление?
Если старый сумеешь выкрутить, то новый обязательно смажь силикотом, как и резьбу в расширительном баке.
-
jolkijam
- Новичок
- Сообщения: 19
- Зарегистрирован: 25 окт 2018, 13:15
- Откуда: vladimir
- Мой котел: baxi main 24 fi
- Благодарил (а): 2 раза
Baxi Main 24 Fi падает ли давление?
Starik, такой вопрос еще , котел работает на отопление больше 12 часов подряд (40-50 градусов), давление не падает , был замечен этот факт много раз . но стоит постоять отключёным больше 5 часов начинает мигать ,
причина думаете в золотнике ?
повторюсь что по манометру всё ок (стрелка в зелёной зоне ) подкачивать надо совсем чуть чуть , ( и такой вопрос ,я подкачиваю в систему воду или воздух ? извините за тупые вопросы
)
причина думаете в золотнике ?
повторюсь что по манометру всё ок (стрелка в зелёной зоне ) подкачивать надо совсем чуть чуть , ( и такой вопрос ,я подкачиваю в систему воду или воздух ? извините за тупые вопросы
-
Starik
- Местный аксакал
- Сообщения: 7457
- Зарегистрирован: 27 ноя 2015, 22:41
- Откуда: Краснодарский край
- Мой котел: BAXI MAIN 5 14f
- Благодарил (а): 73 раза
- Поблагодарили: 820 раз
- Возраст: 59
Baxi Main 24 Fi падает ли давление?
Золотник я бы выкрутил и смазал (у себя своевременно этого не сделал), но это если есть насос с манометром (читай - свой автомобиль, велосипед). Это из того вывода, что "мастер который приходил" сделал.
А так, скорее всего у тебя система отопления завоздушена, т.е. в батареях воздух, могу предположить, что стравливать его не чем (краны Маевского ни кто не ставил). Если повезло и всё есть, выключи котел, подпитай немного больше систему и ходи по всем батареям стравливай, не забывая возвращаться к котлу и подпитывать систему. Подпитка из системы центрального водоснабжения - водой (вопросы - нормальные
). Упреждая возможный вопрос, воздух из угла батареи в циркуляции не участвует, никакая вода его оттуда не вымоет.
Если не повезло и травить не чем - отдельный разговор.
А так, скорее всего у тебя система отопления завоздушена, т.е. в батареях воздух, могу предположить, что стравливать его не чем (краны Маевского ни кто не ставил). Если повезло и всё есть, выключи котел, подпитай немного больше систему и ходи по всем батареям стравливай, не забывая возвращаться к котлу и подпитывать систему. Подпитка из системы центрального водоснабжения - водой (вопросы - нормальные
Если не повезло и травить не чем - отдельный разговор.
-
jolkijam
- Новичок
- Сообщения: 19
- Зарегистрирован: 25 окт 2018, 13:15
- Откуда: vladimir
- Мой котел: baxi main 24 fi
- Благодарил (а): 2 раза
Baxi Main 24 Fi падает ли давление?
Starik, краны Маевского стоят , я так понял это они :
https://avatars.mds.yandex.net/get-mark ... khP8A/orig
вечером попробую вашу процедуру
https://avatars.mds.yandex.net/get-mark ... khP8A/orig
вечером попробую вашу процедуру
-
jolkijam
- Новичок
- Сообщения: 19
- Зарегистрирован: 25 окт 2018, 13:15
- Откуда: vladimir
- Мой котел: baxi main 24 fi
- Благодарил (а): 2 раза
Baxi Main 24 Fi падает ли давление?
Starik, был воздух в ванной в полотенце-сушители ,спустил его ,
ночью котлом не пользовался ,котёл утром не мигал ! ! обычно всегда мигал , надо помониторить ещё, золотник еще не поменял
ночью котлом не пользовался ,котёл утром не мигал ! ! обычно всегда мигал , надо помониторить ещё, золотник еще не поменял
-
Starik
- Местный аксакал
- Сообщения: 7457
- Зарегистрирован: 27 ноя 2015, 22:41
- Откуда: Краснодарский край
- Мой котел: BAXI MAIN 5 14f
- Благодарил (а): 73 раза
- Поблагодарили: 820 раз
- Возраст: 59
Baxi Main 24 Fi падает ли давление?
Если он не травит, то смысла нет менять.
P.S. Если через какое-то время система опять начнет "выделываться" (завоздушится) - ищи подсос воздуха (такое изредка бывает, вроде не течет, но при остывании засасывает воздух).
-
jolkijam
- Новичок
- Сообщения: 19
- Зарегистрирован: 25 окт 2018, 13:15
- Откуда: vladimir
- Мой котел: baxi main 24 fi
- Благодарил (а): 2 раза
Baxi Main 24 Fi падает ли давление?
Starik, мастер (фломастер) говорит что" бак не держит" с насосом что то делал , вот я думаю позвонить распросить конкретно что не держит
-
Starik
- Местный аксакал
- Сообщения: 7457
- Зарегистрирован: 27 ноя 2015, 22:41
- Откуда: Краснодарский край
- Мой котел: BAXI MAIN 5 14f
- Благодарил (а): 73 раза
- Поблагодарили: 820 раз
- Возраст: 59
Baxi Main 24 Fi падает ли давление?
С насосом он вряд ли что-то делал, просто крутил воздухоотводчик (он как раз на насосе), наверное, пытаясь стравить не стравливаемое, ты ж сам убедился - тот пузырь воздуха до котла никогда бы не дошел.jolkijam писал(а): 02 ноя 2018, 09:17 мастер (фломастер) говорит что" бак не держит" с насосом что то делал
А работу бака проверить не сложно, на форуме поищи, есть отдельно вынесенная тема, да и повторяют эту мантру часто за сезон. Мастер должен был, как минимум, стравить давление из СО и с манометром полазить, делал он это или нет - ты знаешь.
-
jolkijam
- Новичок
- Сообщения: 19
- Зарегистрирован: 25 окт 2018, 13:15
- Откуда: vladimir
- Мой котел: baxi main 24 fi
- Благодарил (а): 2 раза
Baxi Main 24 Fi падает ли давление?
Starik, нее , насос имеется ввиду ножной с манометром , он с собой его принес ,и я так понял качал через ниппель в расширительный бак воздух
Отправлено спустя 6 минут :
Starik, вот что нашел по проверке ,я так понял надо открутить колпачек на расширительном баке и манометром померить давление ?
Отправлено спустя 6 минут :
Starik, вот что нашел по проверке ,я так понял надо открутить колпачек на расширительном баке и манометром померить давление ?
как опорожнить котел ?BAXI - Volga писал(а): 22 мар 2015, 14:35 проверка расширительного бака это измерение давления воздуха при опорожнённом котле. должно быть 0,8 бар
-
Starik
- Местный аксакал
- Сообщения: 7457
- Зарегистрирован: 27 ноя 2015, 22:41
- Откуда: Краснодарский край
- Мой котел: BAXI MAIN 5 14f
- Благодарил (а): 73 раза
- Поблагодарили: 820 раз
- Возраст: 59
Baxi Main 24 Fi падает ли давление?
Первая попавшаяся тема https://www.baxi.ru/forum/viewtopic.php ... %B0#p22989
-
jolkijam
- Новичок
- Сообщения: 19
- Зарегистрирован: 25 окт 2018, 13:15
- Откуда: vladimir
- Мой котел: baxi main 24 fi
- Благодарил (а): 2 раза
Baxi Main 24 Fi падает ли давление?
Starik,
бак до сих пор не проверил , ищу мастера в городе пока
заметил вот здесь подтёки ,на сколько это ремонтируемо и серьезно?
Отправлено спустя 3 минуты 3 секунды:
блин , почему то маленькие картинки , щас с Я.диска расшарю
https://yadi.sk/i/9FGnbA9cGIvp4w
https://yadi.sk/i/56UaFat2EcpPjA
бак до сих пор не проверил , ищу мастера в городе пока
заметил вот здесь подтёки ,на сколько это ремонтируемо и серьезно?
Отправлено спустя 3 минуты 3 секунды:
блин , почему то маленькие картинки , щас с Я.диска расшарю
https://yadi.sk/i/9FGnbA9cGIvp4w
https://yadi.sk/i/56UaFat2EcpPjA
-
Bahus
- Главный администратор

- Сообщения: 12998
- Зарегистрирован: 24 июл 2012, 13:05
- Откуда: Пенза
- Мой котел: Пензенская ТЭЦ-1
- Благодарил (а): 83 раза
- Поблагодарили: 1686 раз
- Возраст: 45
Baxi Main 24 Fi падает ли давление?
Это поплавок воздухоотводчика зависает. От грязи или от накипи. Можно почистить, но не надолго. Лучше заменить.
В ЛС отвечаю только по работе форума
Илья Бахталин
АСЦ BAXI "Санфорт". г. Пенза
Подключение к Зонту - bahus1980
Илья Бахталин
АСЦ BAXI "Санфорт". г. Пенза
Подключение к Зонту - bahus1980
-
jolkijam
- Новичок
- Сообщения: 19
- Зарегистрирован: 25 окт 2018, 13:15
- Откуда: vladimir
- Мой котел: baxi main 24 fi
- Благодарил (а): 2 раза
Baxi Main 24 Fi падает ли давление?
я нашел инструкцию по расширительному баку , я так понял мне надо провести в начале эти манипуляции
Как правильно качать воздух в расширительном баке.
1. Перекрыть краны подачи и обратки теплоносителя.
2. Открыть сливной штуцер в котле. Слить воду из котла.
3. Замерить давление в РБ манометром, сливной штуцер при этом открыт.
4. Подсоединить велосипедный насос к золотнику РБ и качать воздух, пока не перестанет течь вода из сливного штуцера.
5. Спустить воздух.
6. Накачать заново (периодически проверяя давление манометром).
Давление в РБ должно быть в пределах 0.8-1 бар.
Давление в СО на холодную систему, должно быть больше давления воздуха в РБ на 0,2-0,3 ат.
7. Закрыть сливной штуцер.
Как правильно качать воздух в расширительном баке.
1. Перекрыть краны подачи и обратки теплоносителя.
2. Открыть сливной штуцер в котле. Слить воду из котла.
3. Замерить давление в РБ манометром, сливной штуцер при этом открыт.
4. Подсоединить велосипедный насос к золотнику РБ и качать воздух, пока не перестанет течь вода из сливного штуцера.
5. Спустить воздух.
6. Накачать заново (периодически проверяя давление манометром).
Давление в РБ должно быть в пределах 0.8-1 бар.
Давление в СО на холодную систему, должно быть больше давления воздуха в РБ на 0,2-0,3 ат.
7. Закрыть сливной штуцер.
-
Bahus
- Главный администратор

- Сообщения: 12998
- Зарегистрирован: 24 июл 2012, 13:05
- Откуда: Пенза
- Мой котел: Пензенская ТЭЦ-1
- Благодарил (а): 83 раза
- Поблагодарили: 1686 раз
- Возраст: 45
Baxi Main 24 Fi падает ли давление?
Можно авто компрессором, если возможность к 220 подключить. И качать до значения из пункта 6. А пункт 5 можно пропустить. Первый раз слышу, чтобы спускать надо было после накачки.jolkijam писал(а): 16 ноя 2018, 10:13 Подсоединить велосипедный насос к золотнику РБ и качать воздух,
В ЛС отвечаю только по работе форума
Илья Бахталин
АСЦ BAXI "Санфорт". г. Пенза
Подключение к Зонту - bahus1980
Илья Бахталин
АСЦ BAXI "Санфорт". г. Пенза
Подключение к Зонту - bahus1980
-
BAXI-Ural
- Представитель BAXI

- Сообщения: 4493
- Зарегистрирован: 07 авг 2012, 18:49
- Откуда: Екатеринбург
- Благодарил (а): 6 раз
- Поблагодарили: 375 раз
- Возраст: 57
Baxi Main 24 Fi падает ли давление?
Я предлагаю методу с проверкой целостности бака, ревизии нипеля.
1. Перекрыть подачу и обратку.
2. Вывернуть золотник расширбака, давление на манометре теплоносителя должно упасть до нуля
3. Краном подпитки дозаполняем котел до давления 2.5 атм, из воздушного штуцера бака не должна литься вода.
4. Вворачиваем золотник, смазав его силиконовой смазкой.
5. Под сливной кран ставим мерную емкость, открываем сливной кран.
6. Качаем воздух до 0.8 - 1.0 атм, из котла льется вода, также из котла не должен выходить воздух.
7. Должно слиться воды не менее чем объем расширбака. Бак исправен.
8. Закрываем сливной кран, доводим давление теплоносителя до рабочего ( +25% от даления воздуха).
1. Перекрыть подачу и обратку.
2. Вывернуть золотник расширбака, давление на манометре теплоносителя должно упасть до нуля
3. Краном подпитки дозаполняем котел до давления 2.5 атм, из воздушного штуцера бака не должна литься вода.
4. Вворачиваем золотник, смазав его силиконовой смазкой.
5. Под сливной кран ставим мерную емкость, открываем сливной кран.
6. Качаем воздух до 0.8 - 1.0 атм, из котла льется вода, также из котла не должен выходить воздух.
7. Должно слиться воды не менее чем объем расширбака. Бак исправен.
8. Закрываем сливной кран, доводим давление теплоносителя до рабочего ( +25% от даления воздуха).
Ярослав Грабик
технический специалист BAXI, Екатеринбург
технический специалист BAXI, Екатеринбург
-
jolkijam
- Новичок
- Сообщения: 19
- Зарегистрирован: 25 окт 2018, 13:15
- Откуда: vladimir
- Мой котел: baxi main 24 fi
- Благодарил (а): 2 раза
Baxi Main 24 Fi падает ли давление?
Bahus, дорогой ли этот самый поплавок ?
Отправлено спустя 6 минут 55 секунд:
BAXI-Ural,
1) подача и обрабтка это 4 крантика такие под котлом ?
3) из воздушного штуцера бака не должно литься вода (если не льется то с мембраной всё хорошо?) и воздушный штуцер это откуда выкрутили золотник ? я правильно понимаю?
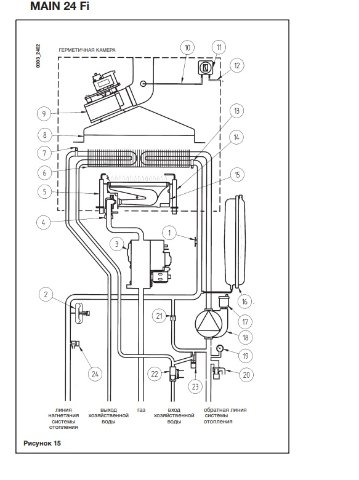
5) сливной кран это который находится около датчика давлнеия? поз.24( см изображение)
6) качаем воздух с помощью ручного насоса в расширительный бак?
Отправлено спустя 7 минут 36 секунд:
и ещё общий вопрос , был у меня мастер с Горгаза , говорит они такое не чинят , (плачу около 1000р раз в год за обслуживание) говорит что может почистить только горелку, и дал номер парня который колымит , чинит котлы , типа ремонт котлов это сервисное обслуживание ( и то что стоит около 5000р в год) а техническое (т.е.) это только чистка горелки и он ничего делать больше не будет ,я так понял он не врёт? или позвонить в горгаз и жалобу на него накатать?
Отправлено спустя 6 минут 55 секунд:
BAXI-Ural,
1) подача и обрабтка это 4 крантика такие под котлом ?
3) из воздушного штуцера бака не должно литься вода (если не льется то с мембраной всё хорошо?) и воздушный штуцер это откуда выкрутили золотник ? я правильно понимаю?
5) сливной кран это который находится около датчика давлнеия? поз.24( см изображение)
6) качаем воздух с помощью ручного насоса в расширительный бак?
Отправлено спустя 7 минут 36 секунд:
и ещё общий вопрос , был у меня мастер с Горгаза , говорит они такое не чинят , (плачу около 1000р раз в год за обслуживание) говорит что может почистить только горелку, и дал номер парня который колымит , чинит котлы , типа ремонт котлов это сервисное обслуживание ( и то что стоит около 5000р в год) а техническое (т.е.) это только чистка горелки и он ничего делать больше не будет ,я так понял он не врёт? или позвонить в горгаз и жалобу на него накатать?
-
Starik
- Местный аксакал
- Сообщения: 7457
- Зарегистрирован: 27 ноя 2015, 22:41
- Откуда: Краснодарский край
- Мой котел: BAXI MAIN 5 14f
- Благодарил (а): 73 раза
- Поблагодарили: 820 раз
- Возраст: 59
Baxi Main 24 Fi падает ли давление?
Не стал бы заморачиваться, мутная там система. Базово, они свою работу выполняют, остальное, как я понимаю, опционально.
Не переживай, ты уже во всём разобрался, осталось выполнить работу.
Если вода из расширительного бачка пойдет - готовь деньги на новый, остальное ремонтируется.
-
jolkijam
- Новичок
- Сообщения: 19
- Зарегистрирован: 25 окт 2018, 13:15
- Откуда: vladimir
- Мой котел: baxi main 24 fi
- Благодарил (а): 2 раза
Baxi Main 24 Fi падает ли давление?
Starik,
бак расширительный куплен внешний ,и даже повешен около котла , но подсоединить его (врезать в обрабтку проблема(все трубы в стену забетонированы) ) да и поставить вместо оригинального не получается рука не подлазиет
еще вопрос ,можно ли снять с котла боковую крышку ? (переднию снять не сложно 2 винта сниза и еще 2 винта сниза и крышку вверх и она снята)
бак расширительный куплен внешний ,и даже повешен около котла , но подсоединить его (врезать в обрабтку проблема(все трубы в стену забетонированы) ) да и поставить вместо оригинального не получается рука не подлазиет
еще вопрос ,можно ли снять с котла боковую крышку ? (переднию снять не сложно 2 винта сниза и еще 2 винта сниза и крышку вверх и она снята)
-
Starik
- Местный аксакал
- Сообщения: 7457
- Зарегистрирован: 27 ноя 2015, 22:41
- Откуда: Краснодарский край
- Мой котел: BAXI MAIN 5 14f
- Благодарил (а): 73 раза
- Поблагодарили: 820 раз
- Возраст: 59
Baxi Main 24 Fi падает ли давление?
Думаю, с баком ты погорячился. В принципе, его можно в любое место СО подключить, допустим на батарею (которая всегда полностью открыта). Вместо крана для стравливания воздуха ввернуть короткую трубку с воздухоотводчиком и в торец - расширительный бак. По месту смотреть, где удобнее и в глаза не бросается.jolkijam писал(а): 16 ноя 2018, 14:53 бак расширительный куплен внешний ,и даже повешен около котла , но подсоединить его (врезать в обрабтку проблема(все трубы в стену забетонированы) ) да и поставить вместо оригинального не получается рука не подлазиет
еще вопрос ,можно ли снять с котла боковую крышку ? (переднию снять не сложно 2 винта сниза и еще 2 винта сниза и крышку вверх и она снята)
Боковая крышка, конечно, снимается, она же - запчасть, даже в каталоге запчастей присутствует. Скачай каталог, там и крепеж крышки виден.
-
jolkijam
- Новичок
- Сообщения: 19
- Зарегистрирован: 25 окт 2018, 13:15
- Откуда: vladimir
- Мой котел: baxi main 24 fi
- Благодарил (а): 2 раза
Baxi Main 24 Fi падает ли давление?
Starik, а что с поплавком ? который на насосе ,и из которого капает вода , дорого ли он стоит ? и трудно ли его почистить?
-
Starik
- Местный аксакал
- Сообщения: 7457
- Зарегистрирован: 27 ноя 2015, 22:41
- Откуда: Краснодарский край
- Мой котел: BAXI MAIN 5 14f
- Благодарил (а): 73 раза
- Поблагодарили: 820 раз
- Возраст: 59
Baxi Main 24 Fi падает ли давление?
Вот сайт https://baxi-expert.ru/shop/zapchasti-b ... otvodchik/, смотри какой твой.
Чистить не приходилось.
И ещё одна ссылка https://baxi.ru/forum/viewtopic.php?f=13&t=4973
-
Bahus
- Главный администратор

- Сообщения: 12998
- Зарегистрирован: 24 июл 2012, 13:05
- Откуда: Пенза
- Мой котел: Пензенская ТЭЦ-1
- Благодарил (а): 83 раза
- Поблагодарили: 1686 раз
- Возраст: 45
Baxi Main 24 Fi падает ли давление?

артикул 607290.
цена 10,35 евро.
Отправлено спустя 3 минуты 51 секунду:
Наличие.
https://service.baxi.ru/info/spare-stock?code=607290
В ЛС отвечаю только по работе форума
Илья Бахталин
АСЦ BAXI "Санфорт". г. Пенза
Подключение к Зонту - bahus1980
Илья Бахталин
АСЦ BAXI "Санфорт". г. Пенза
Подключение к Зонту - bahus1980
-
jolkijam
- Новичок
- Сообщения: 19
- Зарегистрирован: 25 окт 2018, 13:15
- Откуда: vladimir
- Мой котел: baxi main 24 fi
- Благодарил (а): 2 раза
Baxi Main 24 Fi падает ли давление?
да , бак был действительно с рваной мембраной , поставили внешний (соединили в том же месте где и оригинальный бак соединяется, давление перестало падать в режиме лето так быстро ( 4-6 часов ) сейчас давление падает тоже в режиме только лето но уже гораздо меньше ( 4-5 дней) куда дальше копать
? поплавок мне мастера почистили 
-
- Похожие темы
- Ответы
- Просмотры
- Последнее сообщение
-
- 4 Ответы
- 804 Просмотры
-
Последнее сообщение Bahus
-
- 5 Ответы
- 3233 Просмотры
-
Последнее сообщение Bahus
-
- 27 Ответы
- 8285 Просмотры
-
Последнее сообщение Starik
-
- 7 Ответы
- 580 Просмотры
-
Последнее сообщение Starik
-
- 2 Ответы
- 1161 Просмотры
-
Последнее сообщение dregvodaster
Кто сейчас на конференции
Сейчас этот форум просматривают: нет зарегистрированных пользователей и 6 гостей
Боты: Google [Bot], Yandex [Bot]
