Замена котла на менее мощный
-
Саломатин
- Забегающий
- Сообщения: 40
- Зарегистрирован: 28 дек 2015, 21:42
- Благодарил (а): 1 раз
- Поблагодарили: 2 раза
Замена котла на менее мощный
Добрый день. Ситуация классическая - дом построил, теплопотери в программе рассчитал - около 9-12 кВт (в настройках программы от вентиляции зависит): “Да ну нафиг”- сказал я и купил ecofour 1.24fi. (Проект по газу делали уже под купленный котел)Несколько зим показали, что программа считает неплохо, котел ни разу не включался в непрерывный режим, значит, теплопотери не превышают 12кВт. Магазины далеко, котел изнашивается - задумываюсь о приобретении нового котла а старый в резерв (и форсунки для СПГ еще купить). Ecofour 1.14 по всем размерам один в один, кроме диаметра дымохода. Есть решения для подключения 100/60 к дымоходу 110/80?Или это нежелательно делать?дымоход не длинный, но переделывать как-то не хочется, да и что это будет за резерв, если столько всего придется менять в случпе аварии...
-
Steamboy
- Гуру
- Сообщения: 1290
- Зарегистрирован: 18 апр 2013, 14:52
- Откуда: Россия
- Мой котел: Baxi Nuvola 3 B40 240 Fi
- Благодарил (а): 31 раз
- Поблагодарили: 195 раз
- Возраст: 49
Замена котла на менее мощный
В подключении 100/60 к 100/80, нет ничего страшного.
Будет меньше аэродинамическое сопротивление по тракту отработанных газов. Да и по объему всаса воздуха, я думаю проблем тоже быть не должно.
Будет меньше аэродинамическое сопротивление по тракту отработанных газов. Да и по объему всаса воздуха, я думаю проблем тоже быть не должно.
Мои посты, это только мое мнение и оно не претендует быть единственным верным решением.
Любое решение остается за Вами.
Хотите поблагодарить нажмите лайк
Любое решение остается за Вами.
Хотите поблагодарить нажмите лайк
-
Bahus
- Главный администратор

- Сообщения: 13002
- Зарегистрирован: 24 июл 2012, 13:05
- Откуда: Пенза
- Мой котел: Пензенская ТЭЦ-1
- Благодарил (а): 83 раза
- Поблагодарили: 1686 раз
- Возраст: 45
Замена котла на менее мощный
У 1.24F и 1.14F выход одинаковый - 100/60.
Кроме того у меня есть сомнения, что замена котла вам чего-то даст.
Да, у 1.14 минимум заявлен в 6 кВт, но я в это слабо верю. Проще ограничить максимальной мощности вашего котла до 12-14 кВт, получите примерно то же самое.
Кроме того у меня есть сомнения, что замена котла вам чего-то даст.
1.24 имеет минимальную мощность 9 кВт. А это значит, что теплопотери ваши не превышают 9кВт даже в максимум мороза? Если котел всё равно тактует.Саломатин писал(а): 11 авг 2019, 11:19 котел ни разу не включался в непрерывный режим, значит, теплопотери не превышают 12кВт.
Да, у 1.14 минимум заявлен в 6 кВт, но я в это слабо верю. Проще ограничить максимальной мощности вашего котла до 12-14 кВт, получите примерно то же самое.
В ЛС отвечаю только по работе форума
Илья Бахталин
АСЦ BAXI "Санфорт". г. Пенза
Подключение к Зонту - bahus1980
Илья Бахталин
АСЦ BAXI "Санфорт". г. Пенза
Подключение к Зонту - bahus1980
-
Саломатин
- Забегающий
- Сообщения: 40
- Зарегистрирован: 28 дек 2015, 21:42
- Благодарил (а): 1 раз
- Поблагодарили: 2 раза
Замена котла на менее мощный
Немного нелогично, ведь конструкция котлов одинаковая, значит и минимальная мощность пропорционально меньше. У 1.14 не 6 кВт, тогда и у 1.24 не 9 кВт, а больше. Не так?
Просто снизить максимальную мощность не поможет, наверное, хотя... У меня обратная связь через комнатный термостат простой, может быть, котел просто на максимуме всегда работает? Мощность максимальную в меню снижал, но разницы не заметил. Пламя после розжига уменьшается и в процессе не меняется.
-
Steamboy
- Гуру
- Сообщения: 1290
- Зарегистрирован: 18 апр 2013, 14:52
- Откуда: Россия
- Мой котел: Baxi Nuvola 3 B40 240 Fi
- Благодарил (а): 31 раз
- Поблагодарили: 195 раз
- Возраст: 49
Замена котла на менее мощный
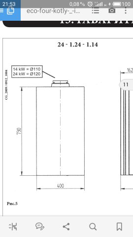
Надо смотреть таблицу характеристик в самом конце того документа, из которого Вы картинку привели в своем посте.
А так всегда смело берите минимальную мощность 30%. Хотя промышленные и станционные котлы смогли достичь минимальной мощности 8-10%
Мои посты, это только мое мнение и оно не претендует быть единственным верным решением.
Любое решение остается за Вами.
Хотите поблагодарить нажмите лайк
Любое решение остается за Вами.
Хотите поблагодарить нажмите лайк
-
log-win
- Завсегдатай
- Сообщения: 106
- Зарегистрирован: 08 янв 2019, 17:24
- Откуда: Звенигород
- Мой котел: LUNA-3 1.310 Fi
- Благодарил (а): 3 раза
- Поблагодарили: 18 раз
Замена котла на менее мощный
Я тут сравнивал 1.24 и 1.31 разница оказалась в форсунках и настройках давления клапана . Посмотрите может 1.14 и 1.24 тоже будут отличаться тоже форсунками и настройками клапана. Тогда вам ваш 24 легко превоатить в 1.14.
-
Bahus
- Главный администратор

- Сообщения: 13002
- Зарегистрирован: 24 июл 2012, 13:05
- Откуда: Пенза
- Мой котел: Пензенская ТЭЦ-1
- Благодарил (а): 83 раза
- Поблагодарили: 1686 раз
- Возраст: 45
Замена котла на менее мощный
Кроме диаметра форсунок, к сожалению, есть ещё их количество. У 24-го их 13 штук. У 14-го всего 10.
А диаметр, кстати, одинаковый.
Ничего это не значит. Не знаю ни одного настенника который мог бы на минимуме упасть меньше 9 кВт. Есть что-то у Иммергаза, но они это какими то хитрыми ходами достигли. И то не факт, что это не маркетинговый ход.
Ну да и вообще. Чем вам тактование жить мешает? Если он каждые 3 минуты включается, тогда да, надо смотреть. А если 3-7 циклов за час, так вполне нормально
Отправлено спустя 3 минуты 45 секунд:
Всё дело в постоянной подаче воздуха у традиционников. Как бы вы с газовой арматурой не изгалялись - вентилятор подаст одинаковое количество воздуха. Если вы меньше минимума уроните минимальное давление - пламя сядет на горелку (если вообще розжиг будет) и карачун ей настанет стремительно.
Вот разве что несколько форсунок заглушить. Думаю у 14-го именно из-за этого минимальная мощность меньше.
В ЛС отвечаю только по работе форума
Илья Бахталин
АСЦ BAXI "Санфорт". г. Пенза
Подключение к Зонту - bahus1980
Илья Бахталин
АСЦ BAXI "Санфорт". г. Пенза
Подключение к Зонту - bahus1980
-
log-win
- Завсегдатай
- Сообщения: 106
- Зарегистрирован: 08 янв 2019, 17:24
- Откуда: Звенигород
- Мой котел: LUNA-3 1.310 Fi
- Благодарил (а): 3 раза
- Поблагодарили: 18 раз
Замена котла на менее мощный
Ну я же говорил что сравнивал 31 и 24 , там форсунок одинаково, о ини разные. Получается что 14 сильнее отличается .
-
Bahus
- Главный администратор

- Сообщения: 13002
- Зарегистрирован: 24 июл 2012, 13:05
- Откуда: Пенза
- Мой котел: Пензенская ТЭЦ-1
- Благодарил (а): 83 раза
- Поблагодарили: 1686 раз
- Возраст: 45
Замена котла на менее мощный
Глушите крайние. всё дешевле выйдет. Но один фиг колхоз.
Всё равно при своём мнении. С 14-м тоже тактовать будет.
Всё равно при своём мнении. С 14-м тоже тактовать будет.
В ЛС отвечаю только по работе форума
Илья Бахталин
АСЦ BAXI "Санфорт". г. Пенза
Подключение к Зонту - bahus1980
Илья Бахталин
АСЦ BAXI "Санфорт". г. Пенза
Подключение к Зонту - bahus1980
-
Саломатин
- Забегающий
- Сообщения: 40
- Зарегистрирован: 28 дек 2015, 21:42
- Благодарил (а): 1 раз
- Поблагодарили: 2 раза
Замена котла на менее мощный
Идея не столько максимальную мощность снизить, сколько котел резервный заиметь. Ведь когда сломается-точно ничего не будет под рукой. Ищи потом 1января котел на замену.
А во вторую очередь уже логично было б уменьшить мощность. СО у меня неправильная, несбалансированная, т.к. считал первый раз и из расчета “запас лишним не будет”. Получилось не очень. Снижение мощности очень желательно. Пусть он тактует, но я немного по другому настрою систему - уже лучше будет. Что вот с дымоходом делать? Какой у него диаметр, можно не переделывать или с 1.24 колхозить уменьшение мощности? 1.14еще и подешевле.
А во вторую очередь уже логично было б уменьшить мощность. СО у меня неправильная, несбалансированная, т.к. считал первый раз и из расчета “запас лишним не будет”. Получилось не очень. Снижение мощности очень желательно. Пусть он тактует, но я немного по другому настрою систему - уже лучше будет. Что вот с дымоходом делать? Какой у него диаметр, можно не переделывать или с 1.24 колхозить уменьшение мощности? 1.14еще и подешевле.
-
Саломатин
- Забегающий
- Сообщения: 40
- Зарегистрирован: 28 дек 2015, 21:42
- Благодарил (а): 1 раз
- Поблагодарили: 2 раза
Замена котла на менее мощный
Бойлер дражица косвенного нагрева как один из контуров гидрострелки. Неудачная модель: стакан под датчик температуры находится внизу у самого входа. Малейшее потребление и котел включается. А теплообменник выше находится и перемешивания не происходит. В результате вверху перегрев (там биметаллический термометр) и котел включается периодически на 2-3 минуты. Еще один недостаток системы.
-
Wandrew
- Забегающий
- Сообщения: 37
- Зарегистрирован: 14 янв 2018, 17:50
- Откуда: Ярославль
- Мой котел: Duo-tec Compact 28 GA
- Благодарил (а): 3 раза
- Поблагодарили: 4 раза
- Возраст: 39
Замена котла на менее мощный
Простите, что вмешиваюсь и знаю, что вы имели ввиду только традиционные котлы, но есть кондесационные. Там легко в минимуме 3 кВтBahus писал(а): 13 авг 2019, 12:00 Не знаю ни одного настенника который мог бы на минимуме упасть меньше 9 кВт.
-
RADAR
- Местный аксакал
- Сообщения: 6728
- Зарегистрирован: 25 июл 2012, 00:33
- Откуда: г.Кострома
- Мой котел: Gepard 23MTV19
- Благодарил (а): 113 раз
- Поблагодарили: 415 раз
- Возраст: 51
Замена котла на менее мощный
т.е. он за стрелкой? не понял мысль..Саломатин писал(а): 13 авг 2019, 20:14 Бойлер дражица косвенного нагрева как один из контуров гидрострелки
можно переставить в "нужное" место...Саломатин писал(а): 13 авг 2019, 20:14 Неудачная модель: стакан под датчик температуры находится внизу у самого входа
Отправлено спустя 41 секунду:
кондик конечно как вариант для модуляции...ага...
-
Саломатин
- Забегающий
- Сообщения: 40
- Зарегистрирован: 28 дек 2015, 21:42
- Благодарил (а): 1 раз
- Поблагодарили: 2 раза
Замена котла на менее мощный
Конечно, а иначе нужен клапан трехходовой. ГВС это один из выходных контуров гидрострелки.
Датчик переставлял выше - там нет “стакана” и включение сильно запаздывает. Пошел в душ и мылся холодной водой. Вернул на место, эксперименты прекратил. Хотя можно насверлить отверстий на разной высоте и попробовать ...
-
RADAR
- Местный аксакал
- Сообщения: 6728
- Зарегистрирован: 25 июл 2012, 00:33
- Откуда: г.Кострома
- Мой котел: Gepard 23MTV19
- Благодарил (а): 113 раз
- Поблагодарили: 415 раз
- Возраст: 51
Замена котла на менее мощный
прямо к бочке прислонять..Саломатин писал(а): 14 авг 2019, 10:18 Хотя можно насверлить отверстий на разной высоте и попробовать ...
а как тогда работает котел на нагрев ГВС и отопления?
Отправлено спустя 38 секунд:
приоритета нет я так понимаю?
-
Саломатин
- Забегающий
- Сообщения: 40
- Зарегистрирован: 28 дек 2015, 21:42
- Благодарил (а): 1 раз
- Поблагодарили: 2 раза
Замена котла на менее мощный
Так я к бочке и прислонял. Вверхней части, там дырочка была под биметаллический термометр.
А в чем проблема с отоплением? По комнатному термостату включаются насосы отопления, по датчику температуры бойлера насос гвс. Штатный режим работы котла. Приоритет установлен и работает, я проверял.
А в чем проблема с отоплением? По комнатному термостату включаются насосы отопления, по датчику температуры бойлера насос гвс. Штатный режим работы котла. Приоритет установлен и работает, я проверял.
-
RADAR
- Местный аксакал
- Сообщения: 6728
- Зарегистрирован: 25 июл 2012, 00:33
- Откуда: г.Кострома
- Мой котел: Gepard 23MTV19
- Благодарил (а): 113 раз
- Поблагодарили: 415 раз
- Возраст: 51
Замена котла на менее мощный
а котел как в режим ГВС выходит?
ни в чем наверно))) интересно схему глянуть, ато непонятненко..))
-
log-win
- Завсегдатай
- Сообщения: 106
- Зарегистрирован: 08 янв 2019, 17:24
- Откуда: Звенигород
- Мой котел: LUNA-3 1.310 Fi
- Благодарил (а): 3 раза
- Поблагодарили: 18 раз
Замена котла на менее мощный
У ТС схема похожая как у меня , но он еще не до конца в ней разобрался. И бкн у меня тоже дражится. Термодатчик надо ставить вверху в любом случае , а точнее он около обратки циркуляции гвс .
-
Саломатин
- Забегающий
- Сообщения: 40
- Зарегистрирован: 28 дек 2015, 21:42
- Благодарил (а): 1 раз
- Поблагодарили: 2 раза
Замена котла на менее мощный
По датчику температуры , который в бойлере установлен. Вода остыла - котел это увидел и включился. Беда в очень низкой дельте температуры включения и она (дельта)не регулируется.
Схемы нет, на телефоне ее рисовать не умею. Вложил из интернета. Гидрострелка с коллектором на 3 контура.
Отправлено спустя 16 минут 39 секунд:
В чем именно и почему вы обо мне в третьем лице говорите ни к кому конкретно не обращаясь?
Все же, какой диаметр дымоходы у котла 1.14? Исуществуют ли переходники, если он меньше , чем у 1.24?
-
RADAR
- Местный аксакал
- Сообщения: 6728
- Зарегистрирован: 25 июл 2012, 00:33
- Откуда: г.Кострома
- Мой котел: Gepard 23MTV19
- Благодарил (а): 113 раз
- Поблагодарили: 415 раз
- Возраст: 51
Замена котла на менее мощный
Саломатин писал(а): 15 авг 2019, 20:44 По датчику температуры , который в бойлере установлен. Вода остыла - котел это увидел и включился.
т.е. 2 датчика температуры в бойлере? один включает котел в режим ГВС? второй насос бойлера?
Отправлено спустя 1 минуту 24 секунды:
Саломатин писал(а): 15 авг 2019, 20:44 Все же, какой диаметр дымоходы у котла 1.14? Исуществуют ли переходники, если он меньше , чем у 1.24?
-
Саломатин
- Забегающий
- Сообщения: 40
- Зарегистрирован: 28 дек 2015, 21:42
- Благодарил (а): 1 раз
- Поблагодарили: 2 раза
Замена котла на менее мощный
Насосы управляются сигналами с котла, предназначенными для управления трехходовым клапаном.
-
log-win
- Завсегдатай
- Сообщения: 106
- Зарегистрирован: 08 янв 2019, 17:24
- Откуда: Звенигород
- Мой котел: LUNA-3 1.310 Fi
- Благодарил (а): 3 раза
- Поблагодарили: 18 раз
Замена котла на менее мощный
В бойлера есть свое термо реле , оно и должно у вас по выставленной температуре на бойлера и управлять насосом бойлера. Но в таком случае вам надо постоянно котлом поддерживать температуру в СО градусов минимум на 5 а лучше на 10 чем выставили в БКН. Но для СО это может быть многовато . Обычно на БКН ставят 60-65. Значить котел должен держать минимум 70 , а лучше 80.
Про дельту вообще не понял, на БКН выставили температуру , пока не нагрелмя насос и не выключится.
Правильнее всего вам поставить привод в котел на трехходовой клапан и термодатчик для БКН. Протянуть еще одну ветку от котла, и пустить БКН от этой ветки отдельно от гидрострелки, и насосом не надо управлять, пусть котел отдельно греет БКН и отдельно СО.
Про дельту вообще не понял, на БКН выставили температуру , пока не нагрелмя насос и не выключится.
Правильнее всего вам поставить привод в котел на трехходовой клапан и термодатчик для БКН. Протянуть еще одну ветку от котла, и пустить БКН от этой ветки отдельно от гидрострелки, и насосом не надо управлять, пусть котел отдельно греет БКН и отдельно СО.
-
Саломатин
- Забегающий
- Сообщения: 40
- Зарегистрирован: 28 дек 2015, 21:42
- Благодарил (а): 1 раз
- Поблагодарили: 2 раза
Замена котла на менее мощный
Уже не знаю, как еще объяснять...
Так и сделано. Котел греет отдельно систему отпления, отдельно бойлер. Температуры выставляются совершенно независимо, ничего нигде не надо поддерживать. В моей модели бойлера нет термореле, это просто утепленная бочка со змеевиком. В нем есть стакан для установки датчика температуры, который напрямую подключается к котлу. В котле есть выходное реле для управления трехходовым клапаном. Вместо клапана реле включает соответствующие насосы через промежуточные реле(не обязательны). В режиме гвс включен насос бойлера, насосы отопления выключены. В режиме отопления -наоборот. Чаще всего включаю режим , когда при отключении встроенного в котел насоса выключаются насосы отопления, т.е. насосы отопления работают только во время работы котла.
-
RADAR
- Местный аксакал
- Сообщения: 6728
- Зарегистрирован: 25 июл 2012, 00:33
- Откуда: г.Кострома
- Мой котел: Gepard 23MTV19
- Благодарил (а): 113 раз
- Поблагодарили: 415 раз
- Возраст: 51
Замена котла на менее мощный
при такой схеме можно реализовать совместный нагрев всех потребителей тепла и уменьшить тактование иногда его не будет и вовсе...радиаторы греются по комнатному термостату(насос) остальные насосы работают постоянно, ТП через смеситель сделать и установить нужную температуру в нем...выход ГВС из бойлера тоже через смеситель и котел на максимум выставить по температуре...чтобы хватило самому горячему потребителю..? 
-
log-win
- Завсегдатай
- Сообщения: 106
- Зарегистрирован: 08 янв 2019, 17:24
- Откуда: Звенигород
- Мой котел: LUNA-3 1.310 Fi
- Благодарил (а): 3 раза
- Поблагодарили: 18 раз
Замена котла на менее мощный
Да я вас понял, вы меня не понимаете, ваша схема подключения и управление бкн не правильная , котел при включении нагрева бкн работает на полную , а для со можно и нужно выставлять другой температурный режим, полюс у котла для бкн режим антилигионел включается и жарит сильно. Как у вас в этом режиме со работает даже страшно представить. Должно быть правильно сделано, а не выдумки .
Если хотите оставить схему, то надо чтоб термостат бкн управлял на прямую своим насосом. А котел выставляйте на 70 и пусть потдерживаеи ее постоянно . Но летом гонять через гидрострелку не айс .
-
- Похожие темы
- Ответы
- Просмотры
- Последнее сообщение
Кто сейчас на конференции
Сейчас этот форум просматривают: нет зарегистрированных пользователей и 1 гость