Помогите с выбором котельного оборудования на дом 300 кв Схема отопления и расчет теплопотерь прилагаю

Подбираем котел Baxi. Настенные, напольные, конденсационные и традиционные. Все вопросы по выбору котла здесь.

Автор темы
nikolas90
Сообщения: 2
Зарегистрирован: 11 май 2022, 19:54
Откуда: Оренбург

Помогите с выбором котельного оборудования на дом 300 кв Схема отопления и расчет теплопотерь прилагаю

Сообщение nikolas90 »

Добрый день!
Помогите пожалуйста советом.
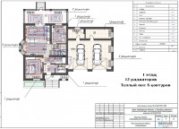
Во вложении попытался накидать систему отопления и площади.
Отопление лучевая система и теплый пол

Нужно подобрать хороший котёл и бойлер косвенного нагрева под мой дом.
Общая отапливаемая площадь 331 кв. метра
Теплопотери дома 20 кВт
Бойлер косвенного нагрева 250-300 литров

Проживать будут 7 человек
На втором этаже 2 сан узла с ваннами
На первом этаже душевая кабина

И какие лучше рассматривать варианты?
Напольный
Настенный
Настенные каскадом
Шахта под дымоход имеется
Вложения
2AF7742B-C9DE-4F9D-87A5-03A61F9F8C05.jpeg
88D9AF25-3A47-48E7-8860-C0F5D7AD2CE3.jpeg
D09E48BD-E09D-4879-93CF-D4DCBD4406D6.jpeg
Ответить
  • Похожие темы
    Ответы
    Просмотры
    Последнее сообщение
  • Помогите с выбором котла для квартиры 100м2
    Rusl@n29 » » в форуме Выбор котельного оборудования Baxi
    3 Ответы
    4738 Просмотры
    Последнее сообщение kdme56
  • Помогите пожалуйста с выбором котла
    od1nwp4 » » в форуме Выбор котельного оборудования Baxi
    3 Ответы
    4955 Просмотры
    Последнее сообщение plehan
  • Кратковременные проблемы в работе в режиме отопления котла BAXI ECO NOVA 1.24F
    idrozd » » в форуме Поломалось - чинимся
    1 Ответы
    491 Просмотры
    Последнее сообщение Starik
  • Проблемы в работе в режиме отопления baxi eco 4s 24F
    araan515 » » в форуме Поломалось - чинимся
    2 Ответы
    509 Просмотры
    Последнее сообщение araan515
  • Не держит температуру отопления Baxi Eco Home
    Максим Иванов » » в форуме Поломалось - чинимся
    8 Ответы
    1093 Просмотры
    Последнее сообщение Livsi

Вернуться в «Выбор котельного оборудования Baxi»

Кто сейчас на конференции

Сейчас этот форум просматривают: нет зарегистрированных пользователей и 2 гостя