Выбор газового оборудования для дома 120 м2

Подбираем котел Baxi. Настенные, напольные, конденсационные и традиционные. Все вопросы по выбору котла здесь.

Автор темы
Vov4ik
Новичок
Сообщения: 5
Зарегистрирован: 21 окт 2019, 23:21
Откуда: Тамбов

Выбор газового оборудования для дома 120 м2

Сообщение Vov4ik »

Здравствуйте!
Прошу совета/ помощи в выборе газового оборудования для СО (комбинированная, двухтрубная радиаторная с параметрами теплоносителя 70/55 С + теплые полы в санузлах через наборы RTL, мощность по проекту 9,5 кВт) и ГВС (кухня, 2 ванны, в каждой из которых будут полотенцесушители, одновременно ванны набираться не будут) одноэтажного дома 120 м2 (330 м3), ПМЖ, 4 человека (2 взрослых+2 ребенка). Всё оборудование будет располагаться в отдельном помещении 17 м3, дымоходы возможны любые. Одна из ванн удалена от предполагаемого размещения бойлера на расстояние 9 м. ТУ на газ 4,99 м3/ч.
На текущий момент вижу следующие варианты:
1) Котёл Baxi ECO Four 1.14 F ? + газовый накопительный водонагреватель?
2) Котёл Baxi ECO Four 1.24 F ? + БКН?
Что лучше?
Какие есть плюсы/минусы у каждого из вариантов?
Какие конкретно устройства порекомендуете?
Насколько литров будет достаточно бойлера?
Что ещё подскажите в моём случае?
Аватара пользователя

Bahus
Главный администратор
Главный администратор
Сообщения: 13054
Зарегистрирован: 24 июл 2012, 13:05
Откуда: Пенза
Мой котел: Пензенская ТЭЦ-1
Благодарил (а): 84 раза
Поблагодарили: 1703 раза
Возраст: 45

Выбор газового оборудования для дома 120 м2

Сообщение Bahus »

Второй вариант безусловно.
Плюсы по сравнению с 1:
1. Потребитель газа один. Не надо разводить газ. магистраль. Плюс возможно в лимиты не уложитесь (в зависимости от ёмкости водонагревателя).
2. Не нужно 2 дымохода.
3. Мощность накопителя Sag3 - 7 кВт. А у косвенника мощность змеевика 25-30 кВт. А это другой объём воды уже. Понятное дело, что 24-й котел больше себя не даст, но всё не 7 кВт.
4. Не помню, можно ли устроить рециркуляцию на ВНГ, а вот на косвеннике точно можно.
5. Единое управление встроенной автоматикой котла. Не нужно использовать спички/пьезо/пилотные горелки всякие. Только установить желаемую температуру в бочке с точностью до 1 градуса.

Вот так навскидку.
Что же до котла:
Ecofour - хорошо. Однако стоимость его комплекта подключения бойлера довольно высокая. И по деньгам выйдет примерно так же, если купить котел Luna-3 (comfort) с его копеечным комплектом подключения. Так что я за Луну в этом случае.
Одноконтурная 24-я Луна, правда, производится только в исполнении "комфорт". Выносная панель с комнатным датчиком тоже не лишней будет.
Обычная одноконтурная Луна-3 есть только 31 кВт.
В ЛС отвечаю только по работе форума

Илья Бахталин

АСЦ BAXI "Санфорт". г. Пенза
Подключение к Зонту - bahus1980

Автор темы
Vov4ik
Новичок
Сообщения: 5
Зарегистрирован: 21 окт 2019, 23:21
Откуда: Тамбов

Выбор газового оборудования для дома 120 м2

Сообщение Vov4ik »

Bahus, спасибо за развернутый ответ!
Буду смотреть в сторону котёл + БКН.
Но сейчас посмотрел характеристики котлов и меня смутили цифры минимальной и максимальной тепловой мощности котла - что они означают? Для котлов серий 1.24 эти мощности 9,3 и 24/25 соответственно. А у меня расчётная по проекту 9,5 кВт (которая, как я понял, рассчитана на самую холодную пятидневку зимы). Не получится, что данные котлы будут работать всегда на максимум для моего дома, или я сильно заблуждаюсь и всё намного проще? :?
Также вопрос по емкости БКН: какой объём выбрать 150 или 200 л в моём случае?
Аватара пользователя

Bahus
Главный администратор
Главный администратор
Сообщения: 13054
Зарегистрирован: 24 июл 2012, 13:05
Откуда: Пенза
Мой котел: Пензенская ТЭЦ-1
Благодарил (а): 84 раза
Поблагодарили: 1703 раза
Возраст: 45

Выбор газового оборудования для дома 120 м2

Сообщение Bahus »

Почему всегда на максимум? У котла диапазон мощности 9,3-24 кВт. Вот он и будет модулировать в пределах этого диапазона в зависимости от текущих запросов.
По ёмкости бочки посоветовать что-то сложно. Всё индивидуально для конкретного домохозяйства. Но указанные вами емкости как раз самые популярные и наиболее востребованные. Моё личное мнение в данном случае - больше не меньше (если финансы и площадь помещения позволяют, конечно).
В ЛС отвечаю только по работе форума

Илья Бахталин

АСЦ BAXI "Санфорт". г. Пенза
Подключение к Зонту - bahus1980

Автор темы
Vov4ik
Новичок
Сообщения: 5
Зарегистрирован: 21 окт 2019, 23:21
Откуда: Тамбов

Выбор газового оборудования для дома 120 м2

Сообщение Vov4ik »

Переформулирую - котёл, наверное, будет работать на своём минимуме 9,3 кВт для моей СО, и скорее всего будет очень часто включаться-выключаться, особенно в межсезонье? Вот и запереживал, не отразится ли негативно такая работа для нём?
А так вариант с Luna-3 (comfort) 1.24 очень понравился - разница действительно не существенная с Ecofour, а качество я так понимаю выше.
Аватара пользователя

Bahus
Главный администратор
Главный администратор
Сообщения: 13054
Зарегистрирован: 24 июл 2012, 13:05
Откуда: Пенза
Мой котел: Пензенская ТЭЦ-1
Благодарил (а): 84 раза
Поблагодарили: 1703 раза
Возраст: 45

Выбор газового оборудования для дома 120 м2

Сообщение Bahus »

Vov4ik писал(а): 22 окт 2019, 15:29 скорее всего будет очень часто включаться-выключаться, особенно в межсезонье?
Вряд ли очень часто, но тактовать, конечно, будет. В этом смысле поможет комнатный термостат (или комнатный датчик, который в комплекте с Луна-3 комфорт идет). Правда, скорее всего пострадает комфорт теплых полов. Скорее всего они будут постоянно непрогретые.
Можно попробовать рассмотреть конденсационный котел из базовых. Дуотек компакт или Луна Дуотек. Правда ещё дороже будет. Но зато у них глубина модуляции ощутимо больше.
В ЛС отвечаю только по работе форума

Илья Бахталин

АСЦ BAXI "Санфорт". г. Пенза
Подключение к Зонту - bahus1980

Автор темы
Vov4ik
Новичок
Сообщения: 5
Зарегистрирован: 21 окт 2019, 23:21
Откуда: Тамбов

Выбор газового оборудования для дома 120 м2

Сообщение Vov4ik »

Bahus писал(а): 22 окт 2019, 16:54 Правда, скорее всего пострадает комфорт теплых полов. Скорее всего они будут постоянно непрогретые.
А из-за чего они будут не прогретые? Если не смотреть в сторону конденсационного котла, этого можно избежать?
Может тогда установить Baxi ECO Four 1.14 F + БКН, чтобы снизить тактование?
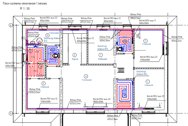
Прикладываю проект отопления, может это поможет для лучшего совета:
Вложения
1.png
Аватара пользователя

Bahus
Главный администратор
Главный администратор
Сообщения: 13054
Зарегистрирован: 24 июл 2012, 13:05
Откуда: Пенза
Мой котел: Пензенская ТЭЦ-1
Благодарил (а): 84 раза
Поблагодарили: 1703 раза
Возраст: 45

Выбор газового оборудования для дома 120 м2

Сообщение Bahus »

Vov4ik писал(а): 22 окт 2019, 18:01 А из-за чего они будут не прогретые?
Если дом с низкими теплопотерями - котел нагнал комнатную температуру до установленной и выключился. В это время по теплым полам упорно гоняется остывающий теплоноситель. И он легко может до комнатной температуры опуститься, пока ждет следующего включения котла.
Vov4ik писал(а): 22 окт 2019, 18:01 Если не смотреть в сторону конденсационного котла, этого можно избежать?
Про конденсационник я упомянул в ключе меньшего тактования.
Vov4ik писал(а): 22 окт 2019, 18:01 Может тогда установить Baxi ECO Four 1.14 F + БКН
Тогда бочка греться будет ощутимо дольше. Да и минимум у 14-го не сильно меньше 24-го.
В целом - тактование не такой страшный зверь, как о нём пишут.
В ЛС отвечаю только по работе форума

Илья Бахталин

АСЦ BAXI "Санфорт". г. Пенза
Подключение к Зонту - bahus1980

Автор темы
Vov4ik
Новичок
Сообщения: 5
Зарегистрирован: 21 окт 2019, 23:21
Откуда: Тамбов

Выбор газового оборудования для дома 120 м2

Сообщение Vov4ik »

Bahus писал(а): 23 окт 2019, 14:03 Если дом с низкими теплопотерями
да, ГБ D400 375 мм.
Bahus писал(а): 23 окт 2019, 14:03 В это время по теплым полам упорно гоняется остывающий теплоноситель.
а как-то можно запрограммировать котёл Luna-3 (comfort) 1.24, чтобы температура теплоносителя не опускалась ниже 35 С? А чтобы радиаторы не грелись в этом случае "поддушить" термоголовками на них?
И ещё момент, вдруг он тоже значим - мы любим, чтобы в доме было тепло зимой где-то 24-25 С.
Bahus писал(а): 23 окт 2019, 14:03 Тогда бочка греться будет ощутимо дольше. Да и минимум у 14-го не сильно меньше 24-го.
А на сколько дольше будет греться БКН, как-то можно рассчитать время нагрева? Вроде в характеристиках написано 6-14 кВт, тем самым нижняя граница мощности котла в 1,5 раза меньше расчётной мощности СО дома.

kasmin
Новичок
Сообщения: 6
Зарегистрирован: 14 апр 2025, 14:32
Откуда: Петрозаводск
Благодарил (а): 7 раз

Выбор газового оборудования для дома 120 м2

Сообщение kasmin »

Vov4ik писал(а): 23 окт 2019, 14:27 А на сколько дольше будет греться БКН
такая же ситуация, как и у автора. дом 110 м2, по электро котлу надо не более 9 кВт мощности в холодную пятидневку.
кроме конденсационников из baxi подходит только eco four 1.14. БКН планирую на 150 л, 17 кВт. (THERMEX Nixen 150 F)
Кто-нибудь котёл пользует этот котёл ?
Действительно у него нижняя граница ниже 9 кВт и хватает для оперативного нагрева БКН?
Аватара пользователя

Bahus
Главный администратор
Главный администратор
Сообщения: 13054
Зарегистрирован: 24 июл 2012, 13:05
Откуда: Пенза
Мой котел: Пензенская ТЭЦ-1
Благодарил (а): 84 раза
Поблагодарили: 1703 раза
Возраст: 45

Выбор газового оборудования для дома 120 м2

Сообщение Bahus »

14 килов ну очень долго 150 литров греть будет
В ЛС отвечаю только по работе форума

Илья Бахталин

АСЦ BAXI "Санфорт". г. Пенза
Подключение к Зонту - bahus1980

kasmin
Новичок
Сообщения: 6
Зарегистрирован: 14 апр 2025, 14:32
Откуда: Петрозаводск
Благодарил (а): 7 раз

Выбор газового оборудования для дома 120 м2

Сообщение kasmin »

Bahus писал(а): 14 апр 2025, 17:58 14 килов ну очень долго 150 литров греть будет
смотря, что брать за точку отсчета...
Может, вопрос глупый, но чтобы потом не кусать локти. Газовый котёл и БКН только выбираю, сейчас электрокотёл и ЭВН.

По паспорту у моего ЭВН 150л, мощность 3.5 кВт, на дельту 45 С греет 180 мин, у указанного БКН 150л 17 кВт на дельту 45 С греет 34 мин.
Я правильно понимаю, что котел 14 кВт + БКН 17 кВт (даже если взять время нагрева 60 мин) "даст" горячей воды в 3 раза больше чем при ЭВН?
Аватара пользователя

Bahus
Главный администратор
Главный администратор
Сообщения: 13054
Зарегистрирован: 24 июл 2012, 13:05
Откуда: Пенза
Мой котел: Пензенская ТЭЦ-1
Благодарил (а): 84 раза
Поблагодарили: 1703 раза
Возраст: 45

Выбор газового оборудования для дома 120 м2

Сообщение Bahus »

Пусть даже 30 кВт змеевик бочки. Больше 14 кВт от котла вы же не получите. Вот отсюда и танцуйте.
В ЛС отвечаю только по работе форума

Илья Бахталин

АСЦ BAXI "Санфорт". г. Пенза
Подключение к Зонту - bahus1980
Ответить
  • Похожие темы
    Ответы
    Просмотры
    Последнее сообщение
  • Необходимость (и выбор) конденсатосборника для Luna-3 Comfort 1.240 Fi
    yabel » » в форуме Поломалось - чинимся
    3 Ответы
    2627 Просмотры
    Последнее сообщение Starik
  • Выбор между ecolife и 4s
    3 Ответы
    3978 Просмотры
    Последнее сообщение Bahus
  • дымоход газового котла Baxi LUNA PLATINUM 1.24.
    Anatoll » » в форуме Дымоудаление и воздухоприток
    23 Ответы
    9199 Просмотры
    Последнее сообщение Bahus
  • UBC 200 (CNEWT200S01) - Выбор магниевого анода
    Petrovich575 » » в форуме Подбор запчасти
    1 Ответы
    3930 Просмотры
    Последнее сообщение Bahus
  • Выбор модели LUNA-3 240 Fi, 24 кВт или ECO Four 24 F, 24
    1 Ответы
    5429 Просмотры
    Последнее сообщение Bahus

Вернуться в «Выбор котельного оборудования Baxi»

Кто сейчас на конференции

Сейчас этот форум просматривают: нет зарегистрированных пользователей и 2 гостя