Выбор газового оборудования для дома 120 м2
Выбор газового оборудования для дома 120 м2
Здравствуйте!
Прошу совета/ помощи в выборе газового оборудования для СО (комбинированная, двухтрубная радиаторная с параметрами теплоносителя 70/55 С + теплые полы в санузлах через наборы RTL, мощность по проекту 9,5 кВт) и ГВС (кухня, 2 ванны, в каждой из которых будут полотенцесушители, одновременно ванны набираться не будут) одноэтажного дома 120 м2 (330 м3), ПМЖ, 4 человека (2 взрослых+2 ребенка). Всё оборудование будет располагаться в отдельном помещении 17 м3, дымоходы возможны любые. Одна из ванн удалена от предполагаемого размещения бойлера на расстояние 9 м. ТУ на газ 4,99 м3/ч.
На текущий момент вижу следующие варианты:
1) Котёл Baxi ECO Four 1.14 F ? + газовый накопительный водонагреватель?
2) Котёл Baxi ECO Four 1.24 F ? + БКН?
Что лучше?
Какие есть плюсы/минусы у каждого из вариантов?
Какие конкретно устройства порекомендуете?
Насколько литров будет достаточно бойлера?
Что ещё подскажите в моём случае?
Прошу совета/ помощи в выборе газового оборудования для СО (комбинированная, двухтрубная радиаторная с параметрами теплоносителя 70/55 С + теплые полы в санузлах через наборы RTL, мощность по проекту 9,5 кВт) и ГВС (кухня, 2 ванны, в каждой из которых будут полотенцесушители, одновременно ванны набираться не будут) одноэтажного дома 120 м2 (330 м3), ПМЖ, 4 человека (2 взрослых+2 ребенка). Всё оборудование будет располагаться в отдельном помещении 17 м3, дымоходы возможны любые. Одна из ванн удалена от предполагаемого размещения бойлера на расстояние 9 м. ТУ на газ 4,99 м3/ч.
На текущий момент вижу следующие варианты:
1) Котёл Baxi ECO Four 1.14 F ? + газовый накопительный водонагреватель?
2) Котёл Baxi ECO Four 1.24 F ? + БКН?
Что лучше?
Какие есть плюсы/минусы у каждого из вариантов?
Какие конкретно устройства порекомендуете?
Насколько литров будет достаточно бойлера?
Что ещё подскажите в моём случае?
-
Bahus
- Главный администратор

- Сообщения: 12480
- Зарегистрирован: 24 июл 2012, 13:05
- Откуда: Пенза
- Мой котел: Пензенская ТЭЦ-1
- Благодарил (а): 78 раз
- Поблагодарили: 1613 раз
- Возраст: 45
Выбор газового оборудования для дома 120 м2
Второй вариант безусловно.
Плюсы по сравнению с 1:
1. Потребитель газа один. Не надо разводить газ. магистраль. Плюс возможно в лимиты не уложитесь (в зависимости от ёмкости водонагревателя).
2. Не нужно 2 дымохода.
3. Мощность накопителя Sag3 - 7 кВт. А у косвенника мощность змеевика 25-30 кВт. А это другой объём воды уже. Понятное дело, что 24-й котел больше себя не даст, но всё не 7 кВт.
4. Не помню, можно ли устроить рециркуляцию на ВНГ, а вот на косвеннике точно можно.
5. Единое управление встроенной автоматикой котла. Не нужно использовать спички/пьезо/пилотные горелки всякие. Только установить желаемую температуру в бочке с точностью до 1 градуса.
Вот так навскидку.
Что же до котла:
Ecofour - хорошо. Однако стоимость его комплекта подключения бойлера довольно высокая. И по деньгам выйдет примерно так же, если купить котел Luna-3 (comfort) с его копеечным комплектом подключения. Так что я за Луну в этом случае.
Одноконтурная 24-я Луна, правда, производится только в исполнении "комфорт". Выносная панель с комнатным датчиком тоже не лишней будет.
Обычная одноконтурная Луна-3 есть только 31 кВт.
Плюсы по сравнению с 1:
1. Потребитель газа один. Не надо разводить газ. магистраль. Плюс возможно в лимиты не уложитесь (в зависимости от ёмкости водонагревателя).
2. Не нужно 2 дымохода.
3. Мощность накопителя Sag3 - 7 кВт. А у косвенника мощность змеевика 25-30 кВт. А это другой объём воды уже. Понятное дело, что 24-й котел больше себя не даст, но всё не 7 кВт.
4. Не помню, можно ли устроить рециркуляцию на ВНГ, а вот на косвеннике точно можно.
5. Единое управление встроенной автоматикой котла. Не нужно использовать спички/пьезо/пилотные горелки всякие. Только установить желаемую температуру в бочке с точностью до 1 градуса.
Вот так навскидку.
Что же до котла:
Ecofour - хорошо. Однако стоимость его комплекта подключения бойлера довольно высокая. И по деньгам выйдет примерно так же, если купить котел Luna-3 (comfort) с его копеечным комплектом подключения. Так что я за Луну в этом случае.
Одноконтурная 24-я Луна, правда, производится только в исполнении "комфорт". Выносная панель с комнатным датчиком тоже не лишней будет.
Обычная одноконтурная Луна-3 есть только 31 кВт.
Выбор газового оборудования для дома 120 м2
Bahus, спасибо за развернутый ответ!
Буду смотреть в сторону котёл + БКН.
Но сейчас посмотрел характеристики котлов и меня смутили цифры минимальной и максимальной тепловой мощности котла - что они означают? Для котлов серий 1.24 эти мощности 9,3 и 24/25 соответственно. А у меня расчётная по проекту 9,5 кВт (которая, как я понял, рассчитана на самую холодную пятидневку зимы). Не получится, что данные котлы будут работать всегда на максимум для моего дома, или я сильно заблуждаюсь и всё намного проще?
Также вопрос по емкости БКН: какой объём выбрать 150 или 200 л в моём случае?
Буду смотреть в сторону котёл + БКН.
Но сейчас посмотрел характеристики котлов и меня смутили цифры минимальной и максимальной тепловой мощности котла - что они означают? Для котлов серий 1.24 эти мощности 9,3 и 24/25 соответственно. А у меня расчётная по проекту 9,5 кВт (которая, как я понял, рассчитана на самую холодную пятидневку зимы). Не получится, что данные котлы будут работать всегда на максимум для моего дома, или я сильно заблуждаюсь и всё намного проще?
Также вопрос по емкости БКН: какой объём выбрать 150 или 200 л в моём случае?
-
Bahus
- Главный администратор

- Сообщения: 12480
- Зарегистрирован: 24 июл 2012, 13:05
- Откуда: Пенза
- Мой котел: Пензенская ТЭЦ-1
- Благодарил (а): 78 раз
- Поблагодарили: 1613 раз
- Возраст: 45
Выбор газового оборудования для дома 120 м2
Почему всегда на максимум? У котла диапазон мощности 9,3-24 кВт. Вот он и будет модулировать в пределах этого диапазона в зависимости от текущих запросов.
По ёмкости бочки посоветовать что-то сложно. Всё индивидуально для конкретного домохозяйства. Но указанные вами емкости как раз самые популярные и наиболее востребованные. Моё личное мнение в данном случае - больше не меньше (если финансы и площадь помещения позволяют, конечно).
По ёмкости бочки посоветовать что-то сложно. Всё индивидуально для конкретного домохозяйства. Но указанные вами емкости как раз самые популярные и наиболее востребованные. Моё личное мнение в данном случае - больше не меньше (если финансы и площадь помещения позволяют, конечно).
Выбор газового оборудования для дома 120 м2
Переформулирую - котёл, наверное, будет работать на своём минимуме 9,3 кВт для моей СО, и скорее всего будет очень часто включаться-выключаться, особенно в межсезонье? Вот и запереживал, не отразится ли негативно такая работа для нём?
А так вариант с Luna-3 (comfort) 1.24 очень понравился - разница действительно не существенная с Ecofour, а качество я так понимаю выше.
А так вариант с Luna-3 (comfort) 1.24 очень понравился - разница действительно не существенная с Ecofour, а качество я так понимаю выше.
-
Bahus
- Главный администратор

- Сообщения: 12480
- Зарегистрирован: 24 июл 2012, 13:05
- Откуда: Пенза
- Мой котел: Пензенская ТЭЦ-1
- Благодарил (а): 78 раз
- Поблагодарили: 1613 раз
- Возраст: 45
Выбор газового оборудования для дома 120 м2
Вряд ли очень часто, но тактовать, конечно, будет. В этом смысле поможет комнатный термостат (или комнатный датчик, который в комплекте с Луна-3 комфорт идет). Правда, скорее всего пострадает комфорт теплых полов. Скорее всего они будут постоянно непрогретые.Vov4ik писал(а): 22 окт 2019, 15:29 скорее всего будет очень часто включаться-выключаться, особенно в межсезонье?
Можно попробовать рассмотреть конденсационный котел из базовых. Дуотек компакт или Луна Дуотек. Правда ещё дороже будет. Но зато у них глубина модуляции ощутимо больше.
Выбор газового оборудования для дома 120 м2
А из-за чего они будут не прогретые? Если не смотреть в сторону конденсационного котла, этого можно избежать?Bahus писал(а): 22 окт 2019, 16:54 Правда, скорее всего пострадает комфорт теплых полов. Скорее всего они будут постоянно непрогретые.
Может тогда установить Baxi ECO Four 1.14 F + БКН, чтобы снизить тактование?
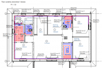
Прикладываю проект отопления, может это поможет для лучшего совета:
-
Bahus
- Главный администратор

- Сообщения: 12480
- Зарегистрирован: 24 июл 2012, 13:05
- Откуда: Пенза
- Мой котел: Пензенская ТЭЦ-1
- Благодарил (а): 78 раз
- Поблагодарили: 1613 раз
- Возраст: 45
Выбор газового оборудования для дома 120 м2
Если дом с низкими теплопотерями - котел нагнал комнатную температуру до установленной и выключился. В это время по теплым полам упорно гоняется остывающий теплоноситель. И он легко может до комнатной температуры опуститься, пока ждет следующего включения котла.
Про конденсационник я упомянул в ключе меньшего тактования.Vov4ik писал(а): 22 окт 2019, 18:01 Если не смотреть в сторону конденсационного котла, этого можно избежать?
Тогда бочка греться будет ощутимо дольше. Да и минимум у 14-го не сильно меньше 24-го.
В целом - тактование не такой страшный зверь, как о нём пишут.
Выбор газового оборудования для дома 120 м2
да, ГБ D400 375 мм.
а как-то можно запрограммировать котёл Luna-3 (comfort) 1.24, чтобы температура теплоносителя не опускалась ниже 35 С? А чтобы радиаторы не грелись в этом случае "поддушить" термоголовками на них?Bahus писал(а): 23 окт 2019, 14:03 В это время по теплым полам упорно гоняется остывающий теплоноситель.
И ещё момент, вдруг он тоже значим - мы любим, чтобы в доме было тепло зимой где-то 24-25 С.
А на сколько дольше будет греться БКН, как-то можно рассчитать время нагрева? Вроде в характеристиках написано 6-14 кВт, тем самым нижняя граница мощности котла в 1,5 раза меньше расчётной мощности СО дома.Bahus писал(а): 23 окт 2019, 14:03 Тогда бочка греться будет ощутимо дольше. Да и минимум у 14-го не сильно меньше 24-го.
-
kasmin
- Новичок
- Сообщения: 6
- Зарегистрирован: 14 апр 2025, 14:32
- Откуда: Петрозаводск
- Благодарил (а): 7 раз
Выбор газового оборудования для дома 120 м2
такая же ситуация, как и у автора. дом 110 м2, по электро котлу надо не более 9 кВт мощности в холодную пятидневку.
кроме конденсационников из baxi подходит только eco four 1.14. БКН планирую на 150 л, 17 кВт. (THERMEX Nixen 150 F)
Кто-нибудь котёл пользует этот котёл ?
Действительно у него нижняя граница ниже 9 кВт и хватает для оперативного нагрева БКН?
-
Bahus
- Главный администратор

- Сообщения: 12480
- Зарегистрирован: 24 июл 2012, 13:05
- Откуда: Пенза
- Мой котел: Пензенская ТЭЦ-1
- Благодарил (а): 78 раз
- Поблагодарили: 1613 раз
- Возраст: 45
-
kasmin
- Новичок
- Сообщения: 6
- Зарегистрирован: 14 апр 2025, 14:32
- Откуда: Петрозаводск
- Благодарил (а): 7 раз
Выбор газового оборудования для дома 120 м2
смотря, что брать за точку отсчета...
Может, вопрос глупый, но чтобы потом не кусать локти. Газовый котёл и БКН только выбираю, сейчас электрокотёл и ЭВН.
По паспорту у моего ЭВН 150л, мощность 3.5 кВт, на дельту 45 С греет 180 мин, у указанного БКН 150л 17 кВт на дельту 45 С греет 34 мин.
Я правильно понимаю, что котел 14 кВт + БКН 17 кВт (даже если взять время нагрева 60 мин) "даст" горячей воды в 3 раза больше чем при ЭВН?
-
Bahus
- Главный администратор

- Сообщения: 12480
- Зарегистрирован: 24 июл 2012, 13:05
- Откуда: Пенза
- Мой котел: Пензенская ТЭЦ-1
- Благодарил (а): 78 раз
- Поблагодарили: 1613 раз
- Возраст: 45
Выбор газового оборудования для дома 120 м2
Пусть даже 30 кВт змеевик бочки. Больше 14 кВт от котла вы же не получите. Вот отсюда и танцуйте.
-
- Похожие темы
- Ответы
- Просмотры
- Последнее сообщение
Кто сейчас на конференции
Сейчас этот форум просматривают: нет зарегистрированных пользователей и 12 гостей