Всем доброго дня!
Котел Baxi fourtech 24 f.
Теплый пол планируется на площадь 26 кв.м. В квартире. 1 этаж.
Планирую 3 контура: кухня, коридор, ванная+туалет.
Регулировка контурами планируется терморегуляторами (3 шт.)
Посоветуйте пожалуйста, как мне подключить коллектор теплого пола (схемку может начертите)
Что мне для этого понадобиться: коллектор, насос, трехходовой?
Как и что придется настроить в котле и коллекторе?
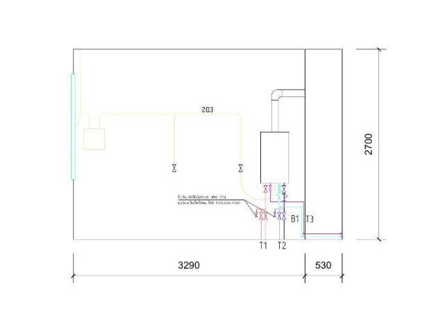
Прикрепил фото, как уже сделана разводка с ГВС и отоплением.
Посоветуйте по подключению теплого пола
-
BAXI-Ural
- Представитель BAXI

- Сообщения: 4505
- Зарегистрирован: 07 авг 2012, 18:49
- Откуда: Екатеринбург
- Благодарил (а): 6 раз
- Поблагодарили: 373 раза
- Возраст: 56
Re: Посоветуйте по подключению теплого пола
"Нам бы схемку аль чертеж, - мы бы начали вертеж..."
Ярослав Грабик
технический специалист BAXI, Екатеринбург
технический специалист BAXI, Екатеринбург
Re: Посоветуйте по подключению теплого пола
Вот в jpeg. Не знаю как в dwg скинуть. Подскажите если нужно!BAXI-Ural писал(а):"Нам бы схемку аль чертеж, - мы бы начали вертеж..."
Re: Посоветуйте по подключению теплого пола
Вот ссылочка на архив с файлами https://yadi.sk/d/dLOiqw5oeezwFBAXI-Ural писал(а):"Нам бы схемку аль чертеж, - мы бы начали вертеж..."
-
- Похожие темы
- Ответы
- Просмотры
- Последнее сообщение
Кто сейчас на конференции
Сейчас этот форум просматривают: нет зарегистрированных пользователей и 2 гостя