Выбор двухконтурного котла для дома 90м2
-
1nx5s
- Сообщения: 4
- Зарегистрирован: 22 апр 2025, 12:53
- Откуда: Москва
Выбор двухконтурного котла для дома 90м2
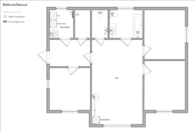
Добрый день! Помогите с выбором двухконтурного котла.
Дом каркасник, площадью 90м2. на полу по всей площади сделан теплый пол в стяжке.
Пока шёл ремонт, в котельной был установлен временно электро котёл и тэн.
Газовый котёл к сожалению не проходит по нормам помещения котельной, потому будет установлен в зал.
Между залом и котельной заложены в пол два контура, один на отопление, второй на ГВС который планирую завести через ТЭН используя его как буфер.
Проживание планируется постоянным. БКН пока ставить не планирую.
Из плюшек - скорее всего хочу выносной термостат в комнату, дабы ручки не подкручивать постоянно на контурах.
Атмосферник не подходит, короче прошу вашего совета.
Дом каркасник, площадью 90м2. на полу по всей площади сделан теплый пол в стяжке.
Пока шёл ремонт, в котельной был установлен временно электро котёл и тэн.
Газовый котёл к сожалению не проходит по нормам помещения котельной, потому будет установлен в зал.
Между залом и котельной заложены в пол два контура, один на отопление, второй на ГВС который планирую завести через ТЭН используя его как буфер.
Проживание планируется постоянным. БКН пока ставить не планирую.
Из плюшек - скорее всего хочу выносной термостат в комнату, дабы ручки не подкручивать постоянно на контурах.
Атмосферник не подходит, короче прошу вашего совета.
У вас нет необходимых прав для просмотра вложений в этом сообщении.
-
Starik
- Местный аксакал
- Сообщения: 7645
- Зарегистрирован: 27 ноя 2015, 22:41
- Откуда: Краснодарский край
- Мой котел: BAXI MAIN 5 14f
- Благодарил (а): 75 раз
- Поблагодарили: 844 раза
- Возраст: 60
Выбор двухконтурного котла для дома 90м2
1nx5s писал(а): 22 апр 2025, 13:08Газовый котёл к сожалению не проходит по нормам помещения котельной, потому будет установлен в зал.
-
1nx5s
- Сообщения: 4
- Зарегистрирован: 22 апр 2025, 12:53
- Откуда: Москва
-
Starik
- Местный аксакал
- Сообщения: 7645
- Зарегистрирован: 27 ноя 2015, 22:41
- Откуда: Краснодарский край
- Мой котел: BAXI MAIN 5 14f
- Благодарил (а): 75 раз
- Поблагодарили: 844 раза
- Возраст: 60
Выбор двухконтурного котла для дома 90м2
Не верю (что они нарушили законодательство).
По существу - котел любой, минимальная мощность у них + одинаковая (что 14, что 24).
-
1nx5s
- Сообщения: 4
- Зарегистрирован: 22 апр 2025, 12:53
- Откуда: Москва
Выбор двухконтурного котла для дома 90м2
Starik, ну не нарушили, котельная не проходит по метражу помещения, далее была рекомендация использовать эту точку, отсюда я и пляшу. Это помещение в котором не живут, там есть капитальная стена и окно, внутренняя камера сгорания от них как условие и негорючая плита..(мособлгаз) Но если расскажите что они нарушили я только за, смысл мне выдумывать и тратить время как своё так и Ваше.
Вы не обижайтесь, я же за советом пришёл а не "спецов на ютубе" смотреть.
а по котлу если то ecolife или 4 ? есть ли смысл ставить 24 ? луна тут наверное вообще бессмыслена?
Вы не обижайтесь, я же за советом пришёл а не "спецов на ютубе" смотреть.
а по котлу если то ecolife или 4 ? есть ли смысл ставить 24 ? луна тут наверное вообще бессмыслена?
-
Starik
- Местный аксакал
- Сообщения: 7645
- Зарегистрирован: 27 ноя 2015, 22:41
- Откуда: Краснодарский край
- Мой котел: BAXI MAIN 5 14f
- Благодарил (а): 75 раз
- Поблагодарили: 844 раза
- Возраст: 60
Выбор двухконтурного котла для дома 90м2
Котел подбирай по деньгам и характеристикам, скачивай инструкции, читай, выбирай то, что тебе понятнее. Про мощность выше пояснил.
-
Bahus
- Главный администратор

- Сообщения: 13197
- Зарегистрирован: 24 июл 2012, 13:05
- Откуда: Пенза
- Мой котел: Пензенская ТЭЦ-1
- Благодарил (а): 84 раза
- Поблагодарили: 1725 раз
- Возраст: 45
Выбор двухконтурного котла для дома 90м2
Просите письменный отказ с обоснованием нормы закона. Оттуда и плясать будем. Прям бумагу официальную. Чтобы было понятно что нарушено (если нарушено)
У них с какой ноги встал - тот и виноват. Такие дела.
У них с какой ноги встал - тот и виноват. Такие дела.
В ЛС отвечаю только по работе форума
Илья Бахталин
АСЦ BAXI "Санфорт". г. Пенза
Подключение к Зонту - bahus1980
Илья Бахталин
АСЦ BAXI "Санфорт". г. Пенза
Подключение к Зонту - bahus1980
-
Starik
- Местный аксакал
- Сообщения: 7645
- Зарегистрирован: 27 ноя 2015, 22:41
- Откуда: Краснодарский край
- Мой котел: BAXI MAIN 5 14f
- Благодарил (а): 75 раз
- Поблагодарили: 844 раза
- Возраст: 60
Выбор двухконтурного котла для дома 90м2
О том, что нарушено - моё утверждение, что котел ставят в помещение, которое не предназначено (не приспособлено, не оборудовано...) для установки газового оборудования.
-
1nx5s
- Сообщения: 4
- Зарегистрирован: 22 апр 2025, 12:53
- Откуда: Москва
Выбор двухконтурного котла для дома 90м2
Так у меня вообще ничего не начато нарушатьсяBahus писал(а): 22 апр 2025, 21:05 Просите письменный отказ с обоснованием нормы закона. Оттуда и плясать будем. Прям бумагу официальную. Чтобы было понятно что нарушено (если нарушено)
У них с какой ноги встал - тот и виноват. Такие дела.
Идет процесс закапывания трубы к домам, параллельно назначен проектировщик от мособлгаза. Это они выставили место под котёл...
Зашел на форум спросить о Baxi, получил наезд и отправку к чтению мануалов.
Что ж, мануалы я скачал и ранее, не ясно только кого и чем задел за живое.. Но всем спасибо за участие.
Но если есть еще что сказать по теме нарушений которых еще не было, буду признателен, как и информации по моему вопросу о подборе котла.
-
Bahus
- Главный администратор

- Сообщения: 13197
- Зарегистрирован: 24 июл 2012, 13:05
- Откуда: Пенза
- Мой котел: Пензенская ТЭЦ-1
- Благодарил (а): 84 раза
- Поблагодарили: 1725 раз
- Возраст: 45
Выбор двухконтурного котла для дома 90м2
Обзовите её теплогенераторной и вся недолга.
И я не понял. Вам проект в Газпроме сделали и утвердили про котёл ? А кто теперь запрещает-то? Я ведь неслучайно про письменный отказ написал. Они там должны сослаться на норму, по которой не проходит помещение. Оттуда и плясать можно.
Про БКН если непонятки, тогда сложно. Так-то двухконтурник можно было бы и с плитой рядом повесить. Без лишних вводов и опусков. Но если потом бочка планируется, тогда не вариант.
В общем, просите норму, по которой нельзя в маленьком помещении котёл поставить, а там видно будет.
Отправлено спустя 6 минут 36 секунд:
И да. Уберите из плана проекта слово "котельная"
В ЛС отвечаю только по работе форума
Илья Бахталин
АСЦ BAXI "Санфорт". г. Пенза
Подключение к Зонту - bahus1980
Илья Бахталин
АСЦ BAXI "Санфорт". г. Пенза
Подключение к Зонту - bahus1980
-
Starik
- Местный аксакал
- Сообщения: 7645
- Зарегистрирован: 27 ноя 2015, 22:41
- Откуда: Краснодарский край
- Мой котел: BAXI MAIN 5 14f
- Благодарил (а): 75 раз
- Поблагодарили: 844 раза
- Возраст: 60
Выбор двухконтурного котла для дома 90м2
Кухня где-то должна быть... газовую плиту установить, котел повесить.
Про котлы выше сказано, могу повторить, если перечитывать лень: на всех моделях традиционных котлов минимальная мощность одинаковая 9,3 - 10,4 кВт, а вот производительность по ГВС заметно отличается. Но ведь это ты уже знаешь, правильно?
Ты хочешь, чтобы тебе указали конкретную модель? А в чем тайный смысл? При правильной эксплуатации, полноценном ТО (не ВДГО) котлы работают годами, десятилетиями...
Про котлы выше сказано, могу повторить, если перечитывать лень: на всех моделях традиционных котлов минимальная мощность одинаковая 9,3 - 10,4 кВт, а вот производительность по ГВС заметно отличается. Но ведь это ты уже знаешь, правильно?
Ты хочешь, чтобы тебе указали конкретную модель? А в чем тайный смысл? При правильной эксплуатации, полноценном ТО (не ВДГО) котлы работают годами, десятилетиями...
-
Olinb66
- Сообщения: 1
- Зарегистрирован: 28 дек 2025, 16:52
- Откуда: Россия
- Мой котел: Baxi luna-3 240fi
Выбор двухконтурного котла для дома 90м2
1nx5s,Объем помещения для газового котла зависит от его мощности: для котлов до 30 кВт — минимум 7,5 м³, от 30 до 60 кВт — 13,5 м³, а для более мощных — 15 м³ или более, при этом высота потолка не менее 2,5 м, а также обязательны вентиляция, окно с площадью остекления 0,03 м² на 1 м³ объема и дверь, открывающаяся наружу.