Подбор газового котла
Подбор газового котла
Добрый вечер, уважаемый форомчане!
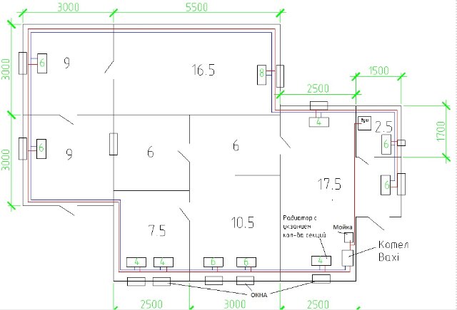
Столкнулся с трудностями при выборе газового котла. Планируется установка в частный загородный дом. Прикладываю план проведения системы отопления и ГВС.
Общая площадь дома порядка 86 кв. м. Планируется двухконтурная система по кругу комнат, использовать при прокладке прямой и обратки полипропиленовые армированные трубы 32 диаметра, ответвления к радиаторам 20 диаметром. Трубы планировалось уложить по полу.
Рассматриваем двухконтурный котел (т.к. потребление воды планируется в 2-х точках) атмосферного типа.
Не могли бы Вы посоветовать какую модель котла Baxi лучше использовать в моем случае? Подскажите, пжл, будет ли работать такая система?
Заранее благодарен!!!
			
							
			
									
						Столкнулся с трудностями при выборе газового котла. Планируется установка в частный загородный дом. Прикладываю план проведения системы отопления и ГВС.
Общая площадь дома порядка 86 кв. м. Планируется двухконтурная система по кругу комнат, использовать при прокладке прямой и обратки полипропиленовые армированные трубы 32 диаметра, ответвления к радиаторам 20 диаметром. Трубы планировалось уложить по полу.
Рассматриваем двухконтурный котел (т.к. потребление воды планируется в 2-х точках) атмосферного типа.
Не могли бы Вы посоветовать какую модель котла Baxi лучше использовать в моем случае? Подскажите, пжл, будет ли работать такая система?
Заранее благодарен!!!
- 
				Bahus
 - Главный администратор

 - Сообщения: 12487
 - Зарегистрирован: 24 июл 2012, 13:05
 - Откуда: Пенза
 - Мой котел: Пензенская ТЭЦ-1
 - Благодарил (а): 78 раз
 - Поблагодарили: 1615 раз
 - Возраст: 45
 
Подбор газового котла
1. Система, как система. Вполне обычная. Единственно - я бы после последнего радиатора продлил чуть лежаки и соединил подачу с обраткой без заужений. Чтобы циркуляция сохранялась даже при всех полностью закрытых радиаторах. Собственно, схема тоже стандартная.
Будет ли работать? Да никто без гидравлического расчета не скажет.
2. Котёл любой, исходя из бюджета. Мощностью не менее 9 кВт (тепловой расчет тоже неплохо было бы сделать).
Маркировка моделей здесь.
			
			
									
						Будет ли работать? Да никто без гидравлического расчета не скажет.
2. Котёл любой, исходя из бюджета. Мощностью не менее 9 кВт (тепловой расчет тоже неплохо было бы сделать).
Маркировка моделей здесь.
Подбор газового котла
Спасибо!
"...продлил чуть лежаки...." - Вы имеете ввиду трубы немного продлить и сделать перемычку?
			
			
									
						"...продлил чуть лежаки...." - Вы имеете ввиду трубы немного продлить и сделать перемычку?
- 
				Bahus
 - Главный администратор

 - Сообщения: 12487
 - Зарегистрирован: 24 июл 2012, 13:05
 - Откуда: Пенза
 - Мой котел: Пензенская ТЭЦ-1
 - Благодарил (а): 78 раз
 - Поблагодарили: 1615 раз
 - Возраст: 45
 
Подбор газового котла
Да. Чтобы конец подачи не в последний радиатор заходил, а в обратку. Иначе, если вы закроете все радиаторы, у вас нарушится циркуляция.
			
			
									
						- 
				BAXI-Ural
 - Представитель BAXI

 - Сообщения: 4493
 - Зарегистрирован: 07 авг 2012, 18:49
 - Откуда: Екатеринбург
 - Благодарил (а): 6 раз
 - Поблагодарили: 374 раза
 - Возраст: 56
 
Подбор газового котла
Сделайте Тихельмана... 
  (Ой! А чо это? )  
			
			
									
						Ярослав Грабик
технический специалист BAXI, Екатеринбург
			
						технический специалист BAXI, Екатеринбург
Подбор газового котла
Bahus, спасибо!
Посмотрел по Вашим рекомендациям модели. Выбор пал на следующие котлы:
ECO-4s 24 - как я понимаю мощность регулируется автоматически в зависимости от настроек: от 9.3 кВт до 24 кВт. Также выбор пал на эту модель в связи с желанием использовать котел атмосферного типа.
LUNA-3 240 i - при сравнении на сайте с котлом ECO-4s 24 не обнаружил отличий. Чем они отличаются?
Подскажите, какой из них более пригоден для моего случая.
			
			
									
						Посмотрел по Вашим рекомендациям модели. Выбор пал на следующие котлы:
ECO-4s 24 - как я понимаю мощность регулируется автоматически в зависимости от настроек: от 9.3 кВт до 24 кВт. Также выбор пал на эту модель в связи с желанием использовать котел атмосферного типа.
LUNA-3 240 i - при сравнении на сайте с котлом ECO-4s 24 не обнаружил отличий. Чем они отличаются?
Подскажите, какой из них более пригоден для моего случая.
- 
				Bahus
 - Главный администратор

 - Сообщения: 12487
 - Зарегистрирован: 24 июл 2012, 13:05
 - Откуда: Пенза
 - Мой котел: Пензенская ТЭЦ-1
 - Благодарил (а): 78 раз
 - Поблагодарили: 1615 раз
 - Возраст: 45
 
Подбор газового котла
Да
Надежностью. Luna позиционируется как котел премиум сегмента. Всё, что ниже её по цене - эконом и ультрабюджет.
Сравните Eco4s и Ecofour. Характеристики вообще идентичные. А цена в магазинах у EcoFour на 5-7 выше. Гидравлика из латуни. Но электроника та же. А вот у Луны уже другая. Там и возможностей больше и отказоустойчивость выше.
Подбор газового котла
BAXI-Ural, спасибо.
Проблема в том, что не хотелось бы "проходить" обраткой еще одну дверь после крайнего радиатора.
			
			
									
						оценил Ваш сарказм. К счастью сам являюсь техническим специалистом (в другой области) и разобраться в петле Тахельмана не составило труда.
Проблема в том, что не хотелось бы "проходить" обраткой еще одну дверь после крайнего радиатора.
- 
				Bahus
 - Главный администратор

 - Сообщения: 12487
 - Зарегистрирован: 24 июл 2012, 13:05
 - Откуда: Пенза
 - Мой котел: Пензенская ТЭЦ-1
 - Благодарил (а): 78 раз
 - Поблагодарили: 1615 раз
 - Возраст: 45
 
Подбор газового котла
Bahus, да, верно, только при этом "обраткой" будет обходиться одна дверь (та, что слева на рисунке), если использовать обычную двухтрубную систему. В случае с Тахельманом придется обходить "обраткой" еще и входную дверь (та, что справа на рисунке).
			
			
									
						- 
				BAXI-Ural
 - Представитель BAXI

 - Сообщения: 4493
 - Зарегистрирован: 07 авг 2012, 18:49
 - Откуда: Екатеринбург
 - Благодарил (а): 6 раз
 - Поблагодарили: 374 раза
 - Возраст: 56
 
Подбор газового котла
Дело хозяйское... "Тихельмана" балансируется автоматически, с "тупиком" поппыгаете (и не известно, что получится) 
			
			
									
						Ярослав Грабик
технический специалист BAXI, Екатеринбург
			
						технический специалист BAXI, Екатеринбург
- 
				Bahus
 - Главный администратор

 - Сообщения: 12487
 - Зарегистрирован: 24 июл 2012, 13:05
 - Откуда: Пенза
 - Мой котел: Пензенская ТЭЦ-1
 - Благодарил (а): 78 раз
 - Поблагодарили: 1615 раз
 - Возраст: 45
 
Подбор газового котла
BAXI-Ural, спасибо! Буду думать в сторону Тахельмана. Действительно, с ней проблем меньше по настройке. Тем более ГВС в душ все равно тянуть, как правильно отметил Starik.
			
			
									
						- 
					
- Похожие темы
 - Ответы
 - Просмотры
 - Последнее сообщение
 
 
- 
						
- 21 Ответы
 - 1317 Просмотры
 - 
								Последнее сообщение  Bahus																			
											
										
																		
 
 - 
						
- 18 Ответы
 - 6850 Просмотры
 - 
								Последнее сообщение  Polzoovatel																			
											
										
																		
 
 - 
						
- 22 Ответы
 - 795 Просмотры
 - 
								Последнее сообщение  Goblinus																			
											
										
																		
 
 - 
						
- 5 Ответы
 - 592 Просмотры
 - 
								Последнее сообщение  Bahus																			
											
										
																		
 
 - 
						
- 1 Ответы
 - 509 Просмотры
 - 
								Последнее сообщение  Starik																			
											
										
																		
 
 
Кто сейчас на конференции
Сейчас этот форум просматривают: нет зарегистрированных пользователей и 1 гость