Как подогнать коаксиальный дымоход
-
Victorych-85
- Новичок
- Сообщения: 7
- Зарегистрирован: 14 ноя 2021, 22:53
- Откуда: Городец
- Благодарил (а): 8 раз
Как подогнать коаксиальный дымоход
Здравствуйте. У себя в доме, я хочу установить котел BAXI ECO Four 1.24, используя при этом коаксиальный дымоход, который должен уходить влево от котла, при этом отверстие в стене под коаксиальный дымоход уже имеется, но на расстоянии 180 мм от угла (до этого был установлен CHAUFFOTEAUX ALIXIA S 24 FF), а не на 122 мм, как должно быть при установке ECO Four 1.24. Скажите, существует ли способ корректной прокладки труб дымохода в прежнее отверстие?
-
Bahus
- Главный администратор

- Сообщения: 12969
- Зарегистрирован: 24 июл 2012, 13:05
- Откуда: Пенза
- Мой котел: Пензенская ТЭЦ-1
- Благодарил (а): 82 раза
- Поблагодарили: 1683 раза
- Возраст: 45
Как подогнать коаксиальный дымоход
Ничего не понятно. Кто на ком стоял?
Можно рисуночек? Хоть бы и на коленке сделанный.
Можно рисуночек? Хоть бы и на коленке сделанный.
В ЛС отвечаю только по работе форума
Илья Бахталин
АСЦ BAXI "Санфорт". г. Пенза
Подключение к Зонту - bahus1980
Илья Бахталин
АСЦ BAXI "Санфорт". г. Пенза
Подключение к Зонту - bahus1980
-
Victorych-85
- Новичок
- Сообщения: 7
- Зарегистрирован: 14 ноя 2021, 22:53
- Откуда: Городец
- Благодарил (а): 8 раз
Как подогнать коаксиальный дымоход
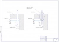
Вот чертежи, посмотрите пожалуйста. https://disk.yandex.ru/i/9BkQ1rwToob7UQ
-
Дмитрий079
- Завсегдатай
- Сообщения: 108
- Зарегистрирован: 18 сен 2021, 23:18
- Откуда: Киров
- Благодарил (а): 2 раза
- Поблагодарили: 11 раз
-
Bahus
- Главный администратор

- Сообщения: 12969
- Зарегистрирован: 24 июл 2012, 13:05
- Откуда: Пенза
- Мой котел: Пензенская ТЭЦ-1
- Благодарил (а): 82 раза
- Поблагодарили: 1683 раза
- Возраст: 45
Как подогнать коаксиальный дымоход
А, вот теперь понял. Новую дыру лень бить 
Тогда да, два отвода на 45°. Возможно получится вывести. Но будет некрасиво, на мой взгляд.
Тогда да, два отвода на 45°. Возможно получится вывести. Но будет некрасиво, на мой взгляд.
В ЛС отвечаю только по работе форума
Илья Бахталин
АСЦ BAXI "Санфорт". г. Пенза
Подключение к Зонту - bahus1980
Илья Бахталин
АСЦ BAXI "Санфорт". г. Пенза
Подключение к Зонту - bahus1980
-
Victorych-85
- Новичок
- Сообщения: 7
- Зарегистрирован: 14 ноя 2021, 22:53
- Откуда: Городец
- Благодарил (а): 8 раз
Как подогнать коаксиальный дымоход
Да, спасибо
А есть еще какие-нибудь варианты?
И если Вас не затруднит, скажите,пожалуйста:
1. Чем отличаются модели ECO-4s 1.24 F и ECO Four 1.24 F, кроме того, что модель ECO-4s оснащена гидравлической группой из композитных материалов?
2. Является ли модель ECO-4s 1.24 F менее надежной, чем ECO Four 1.24 F?
3. Можно ли устанавливать трехходовой клапан (из комплекта KHG71409631) не на котел, а ближе к бойлеру?
4. Можно ли наращивать провода колодки подключения мотора трехходового клапана и датчика температуры бойлера? Какие, при этом, нужно соблюсти условия?
5. Обязательно ли подводить линию подпитки к котлу, или её можно сделать в магистрали отопления?
С нетерпением жду Ваших ответов, заранее благодарю!
-
Bahus
- Главный администратор

- Сообщения: 12969
- Зарегистрирован: 24 июл 2012, 13:05
- Откуда: Пенза
- Мой котел: Пензенская ТЭЦ-1
- Благодарил (а): 82 раза
- Поблагодарили: 1683 раза
- Возраст: 45
Как подогнать коаксиальный дымоход
Дыру новую пробить.
1. Только материал гидравлической части. Ну там есть ещё небольшие нюансы, пользователю в целом неинтересные. Разве только во время покупки запчастей на замену (стоимость).
2. Вопрос достоин отдельного холивара. Нет смысла обсуждать. У каждого своё мнение.
3. Препятствий не вижу. Но зачем? Резать родной кабель мотора, чтобы получить сомнительный выигрыш по трубе?
4. На моторе 230VAC, соответственно сечение не заужаем. Хорошая изоляция. Что же до датчика - увеличивать можно. Но лучше не зверствовать с длиной. Ибо чем дальше, тем больше сопротивление. Соответственно датчик будет больше врать.
5. Где угодно. Главное, чтобы манометр рядом был.
В ЛС отвечаю только по работе форума
Илья Бахталин
АСЦ BAXI "Санфорт". г. Пенза
Подключение к Зонту - bahus1980
Илья Бахталин
АСЦ BAXI "Санфорт". г. Пенза
Подключение к Зонту - bahus1980
-
ivaha
- Новичок
- Сообщения: 5
- Зарегистрирован: 18 дек 2022, 01:09
- Откуда: Смоленск
- Мой котел: Baxi Eco Four 24F
- Благодарил (а): 2 раза
Как подогнать коаксиальный дымоход
Здравствуйте. Подскажите пожалуйста, допускается использовать промежуточное колено 90° или 45° сразу после стартового колена 90°, а потом уже прямой участок дымохода? Дымоход нужно прижать максимально к стене для соблюдения требования 50см от окна. Котёл Eco Four 24F, дымоход 100/60.
-
Sergey1977
- Новичок
- Сообщения: 17
- Зарегистрирован: 15 апр 2021, 05:43
- Откуда: Краснодарский край,калиниская
- Поблагодарили: 1 раз
- Возраст: 48
Как подогнать коаксиальный дымоход
А если от стены планки поставить,бывало заднюю раму от старого котла вешали а на нее котел
-
Starik
- Местный аксакал
- Сообщения: 7434
- Зарегистрирован: 27 ноя 2015, 22:41
- Откуда: Краснодарский край
- Мой котел: BAXI MAIN 5 14f
- Благодарил (а): 73 раза
- Поблагодарили: 819 раз
- Возраст: 59
Как подогнать коаксиальный дымоход
А почему нет? В инструкции вроде понятно написано:ivaha писал(а): 18 дек 2022, 01:19Подскажите пожалуйста, допускается использовать промежуточное колено 90° или 45° сразу после стартового колена 90°,
-
ivaha
- Новичок
- Сообщения: 5
- Зарегистрирован: 18 дек 2022, 01:09
- Откуда: Смоленск
- Мой котел: Baxi Eco Four 24F
- Благодарил (а): 2 раза
Как подогнать коаксиальный дымоход
Вроде и понятно, но хотелось что бы специалисты подтвердили. Спасибо. Я хочу стартовое колено тоже под углом 45° развернуть к стене, к нему колено 45° и далее труба через стену на улицу. По прикидкам труба как раз сместиться ближе к стене на которой висит котёл.
-
Starik
- Местный аксакал
- Сообщения: 7434
- Зарегистрирован: 27 ноя 2015, 22:41
- Откуда: Краснодарский край
- Мой котел: BAXI MAIN 5 14f
- Благодарил (а): 73 раза
- Поблагодарили: 819 раз
- Возраст: 59
Как подогнать коаксиальный дымоход
Для сомнений причин не вижу. Крути-верти как надо, главное собрать без перекосов, герметично, в длину вписаться и антиобледенительный наконечник установить. Ещё нюанс, монтировать так, что бы легко (не сложно) было разбирать - собирать (в стене не заделывай намертво, способов много).
-
ivaha
- Новичок
- Сообщения: 5
- Зарегистрирован: 18 дек 2022, 01:09
- Откуда: Смоленск
- Мой котел: Baxi Eco Four 24F
- Благодарил (а): 2 раза
Как подогнать коаксиальный дымоход
Спасибо ещё раз. Уже закупился, вроде всё получается)Starik писал(а): 18 дек 2022, 15:06 Для сомнений причин не вижу. Крути-верти как надо, главное собрать без перекосов, герметично, в длину вписаться и антиобледенительный наконечник установить. Ещё нюанс, монтировать так, что бы легко (не сложно) было разбирать - собирать (в стене не заделывай намертво, способов много).
-
IREK
- Новичок
- Сообщения: 6
- Зарегистрирован: 28 дек 2022, 11:56
- Откуда: Комссомольское
- Мой котел: Baxi ecofour 24F
- Благодарил (а): 2 раза
Как подогнать коаксиальный дымоход
Всем привет. Коаксиальная труба торчит от кирпичной стены на 25см, это нормально или нужно удлинить?
-
Starik
- Местный аксакал
- Сообщения: 7434
- Зарегистрирован: 27 ноя 2015, 22:41
- Откуда: Краснодарский край
- Мой котел: BAXI MAIN 5 14f
- Благодарил (а): 73 раза
- Поблагодарили: 819 раз
- Возраст: 59
Как подогнать коаксиальный дымоход
Для всасывающей части - без разницы, тут важнее уклон на улицу сделать (коаксиала полностью). Для выхлопной - есть нюансы, если климат суровый, то ставят антиобледенительный наконечник. Найти разновидности наконечников в интернете не сложно.
-
IREK
- Новичок
- Сообщения: 6
- Зарегистрирован: 28 дек 2022, 11:56
- Откуда: Комссомольское
- Мой котел: Baxi ecofour 24F
- Благодарил (а): 2 раза
Как подогнать коаксиальный дымоход
Уклон 1см на 1м.Наконечник типа такого, вроде антилед. Котёл недавно запустил, пока морозы не ниже -10.
Отправлено спустя 8 минут 15 секунд:
В комплекте коаксиала есть металлическое кольцо, в инструкции котла написано что до 1м нужно ставить, больше метра не нужно. Когда монтировал дымоход не знал об этом кольце и не ставил. Как я понял кольцо влияет на поток воздуха. Нужно ли вставить когда длина трубы1м?
Отправлено спустя 8 минут 15 секунд:
В комплекте коаксиала есть металлическое кольцо, в инструкции котла написано что до 1м нужно ставить, больше метра не нужно. Когда монтировал дымоход не знал об этом кольце и не ставил. Как я понял кольцо влияет на поток воздуха. Нужно ли вставить когда длина трубы1м?
- Вложения
-
- 9.jpg (11.32 КБ) 12621 просмотр
-
Starik
- Местный аксакал
- Сообщения: 7434
- Зарегистрирован: 27 ноя 2015, 22:41
- Откуда: Краснодарский край
- Мой котел: BAXI MAIN 5 14f
- Благодарил (а): 73 раза
- Поблагодарили: 819 раз
- Возраст: 59
Как подогнать коаксиальный дымоход
Котел работает нормально, ошибок не выдает, значит ставить не обязательно, имхо. Само кольцо не выбрасывай (на котел сверху положи, проволочкой примотай), когда тепло станет (весной) можешь попробовать установить.
Наконечник примерно такой, но если сейчас всё в порядке, тоже не нужен.
-
- Похожие темы
- Ответы
- Просмотры
- Последнее сообщение
-
- 13 Ответы
- 7651 Просмотры
-
Последнее сообщение Bahus
-
- 1 Ответы
- 6985 Просмотры
-
Последнее сообщение Bahus
-
- 10 Ответы
- 2882 Просмотры
-
Последнее сообщение Bahus
-
- 23 Ответы
- 6672 Просмотры
-
Последнее сообщение Bahus
-
- 0 Ответы
- 4554 Просмотры
-
Последнее сообщение vkostromin
Кто сейчас на конференции
Сейчас этот форум просматривают: нет зарегистрированных пользователей и 27 гостей