Auriga дополнительный обогрев.
Auriga дополнительный обогрев.
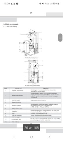
Добрый день. У меня Baxi Auriga моноблок , и он работает до -25 и дополнительного тена нет. Так вот вопрос такой а что если добавить в моноблок просто подогреватель воздуха? Не умрёт ли при этом насос и тд? И второе, в инструкции есть пометка что резервный отопитель якобы может и можно установить. Но где его достать и точно ли его можно добавить? Добавил картинку. Резерв это номер 2.
-
Bahus
- Главный администратор

- Сообщения: 12969
- Зарегистрирован: 24 июл 2012, 13:05
- Откуда: Пенза
- Мой котел: Пензенская ТЭЦ-1
- Благодарил (а): 82 раза
- Поблагодарили: 1683 раза
- Возраст: 45
Auriga дополнительный обогрев.
Ого. Что за зверь? Вы, вероятно, не из России? Нам такого не поставляют. Где документацию полистать?
Отправлено спустя 45 секунд:
Ага, увидел Латвию. Так или иначе вопрос про инструкцию остаётся
Отправлено спустя 45 секунд:
Ага, увидел Латвию. Так или иначе вопрос про инструкцию остаётся
В ЛС отвечаю только по работе форума
Илья Бахталин
АСЦ BAXI "Санфорт". г. Пенза
Подключение к Зонту - bahus1980
Илья Бахталин
АСЦ BAXI "Санфорт". г. Пенза
Подключение к Зонту - bahus1980
Auriga дополнительный обогрев.
На международном сайте есть. В низу страницы. https://www.baxi.com/products/heat-pumps/auriga-a
Отправлено спустя 1 минуту 25 секунд:
У нас с техпождержкой всё плохо, они в целом ничего не знают. А Итальянцы отвечать не хотят. Говорят решайте с местными.
Отправлено спустя 1 минуту 25 секунд:
У нас с техпождержкой всё плохо, они в целом ничего не знают. А Итальянцы отвечать не хотят. Говорят решайте с местными.
-
Bahus
- Главный администратор

- Сообщения: 12969
- Зарегистрирован: 24 июл 2012, 13:05
- Откуда: Пенза
- Мой котел: Пензенская ТЭЦ-1
- Благодарил (а): 82 раза
- Поблагодарили: 1683 раза
- Возраст: 45
Auriga дополнительный обогрев.
А, блин. Тепловой насос. Я в них не алё вообще. Может кто другой подскажет.
В ЛС отвечаю только по работе форума
Илья Бахталин
АСЦ BAXI "Санфорт". г. Пенза
Подключение к Зонту - bahus1980
Илья Бахталин
АСЦ BAXI "Санфорт". г. Пенза
Подключение к Зонту - bahus1980
-
RADAR
- Местный аксакал
- Сообщения: 6713
- Зарегистрирован: 25 июл 2012, 00:33
- Откуда: г.Кострома
- Мой котел: Gepard 23MTV19
- Благодарил (а): 113 раз
- Поблагодарили: 415 раз
- Возраст: 51
Auriga дополнительный обогрев.
к нам такие не возят..Vorlik писал(а): 22 дек 2024, 18:04 У меня Baxi Auriga моноблок , и он работает до -25 и дополнительного тена нет.
я так понял, что родной опциональный подогреватель не воздушный, а водяной.. подогревает воду в сильные морозы и при отказе внешнего блока.. а воздух для чего подогревать?Vorlik писал(а): 22 дек 2024, 18:04 Так вот вопрос такой а что если добавить в моноблок просто подогреватель воздуха?
Auriga дополнительный обогрев.
Идея такая. Во под номером 2 должен быть резервные. Судя по картинке он греет только воздух в камере, для того чтобы мог работать нагреватель воды. ( это только в теории) и вот была идея поставить в камеру тоже тэн который будет греть камеру где водонагреватель стоит, тем самым имитировать что на улице не -30 а - 15 например, так сказать обманывать систему, но при этом согревать сам водонагреватель. Но стоит вопрос так ли это? И не сломается ли что-то при такой схеме ?
-
RADAR
- Местный аксакал
- Сообщения: 6713
- Зарегистрирован: 25 июл 2012, 00:33
- Откуда: г.Кострома
- Мой котел: Gepard 23MTV19
- Благодарил (а): 113 раз
- Поблагодарили: 415 раз
- Возраст: 51
Auriga дополнительный обогрев.
думаю, что не так...но это не точно т.к. не работаем с ними..
не должно..
Auriga дополнительный обогрев.
Ну вот и не понятно. Начинка очень схоже с Мидеа, и платы оттуда. Но там видно что резервный греет воду. А здесь непонятно.думаю, что не так...но это не точно т.к. не работаем с ними..
Я тоже так думаю. Но хочется как-то поточнеене должно
Отправлено спустя 2 минуты 18 секунд:
А ещё если эта схема сработает то какой мощности должен быть обогреватель, чтобы успевать греть всё.
-
- Похожие темы
- Ответы
- Просмотры
- Последнее сообщение
Кто сейчас на конференции
Сейчас этот форум просматривают: нет зарегистрированных пользователей и 2 гостя