Premier Plus 300л. + LUNA Duo-tec MP 1.70
-
Михаил11
- Новичок
- Сообщения: 8
- Зарегистрирован: 12 авг 2014, 14:48
Premier Plus 300л. + LUNA Duo-tec MP 1.70
День добрый господа спецы!!!
Есть такая проблема!! Котел LUNA Duo-tec MP 1.70 и бойлер Premier Plus на 300литров, так же прикупили датчик бойлера! Система отопления собрана ГС с распред. коллектором на 5 высокотемпературных контуров + контур на бойлер.
Вопрос как электрически завязать бойлер с котлом и с насосом рециркуляции используя датчик бойлера???
Помогите чем сможете собрал все а с электрикой напряг получился! Помыться то хочется в гор. воде!!!
Есть такая проблема!! Котел LUNA Duo-tec MP 1.70 и бойлер Premier Plus на 300литров, так же прикупили датчик бойлера! Система отопления собрана ГС с распред. коллектором на 5 высокотемпературных контуров + контур на бойлер.
Вопрос как электрически завязать бойлер с котлом и с насосом рециркуляции используя датчик бойлера???
Помогите чем сможете собрал все а с электрикой напряг получился! Помыться то хочется в гор. воде!!!
-
BAXI - Volga
- Представитель BAXI

- Сообщения: 2335
- Зарегистрирован: 21 фев 2014, 00:20
- Откуда: Нижний Новгород
- Благодарил (а): 40 раз
- Поблагодарили: 212 раз
Re: Premier Plus 300л. + LUNA Duo-tec MP 1.70
Бойлером может управлять котёл - достаточно завести на плату датчик ГВС бойлера и подключить на плату загрузочный насос бойлера. Конечно нужно проверить параметры настройки котла.
У вас нет необходимых прав для просмотра вложений в этом сообщении.
Андрей.
Технический специалист BAXI.
Нижний Новгород.
Технический специалист BAXI.
Нижний Новгород.
-
Михаил11
- Новичок
- Сообщения: 8
- Зарегистрирован: 12 авг 2014, 14:48
Re: Premier Plus 300л. + LUNA Duo-tec MP 1.70
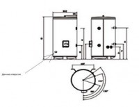
Извините за глупые вопросы, но поз. 1 и 2 что за реле??
И еще, куда вставлять датчик бойлера поз. 3 ??
И еще, куда вставлять датчик бойлера поз. 3 ??
У вас нет необходимых прав для просмотра вложений в этом сообщении.
-
BAXI - Volga
- Представитель BAXI

- Сообщения: 2335
- Зарегистрирован: 21 фев 2014, 00:20
- Откуда: Нижний Новгород
- Благодарил (а): 40 раз
- Поблагодарили: 212 раз
Re: Premier Plus 300л. + LUNA Duo-tec MP 1.70
1. Датчик нужно вставить в бойлер, точнее говоря в гильзу - у бойлера Premier штатно установлен термостат, вот если его вынуть, то освободиться место под датчик.
2. На плате котла есть колодки подключения, обозначенные М1, М2, М3... так вот колодка М3 предназначена для подключения насосов, но мощность подключаемых насосов не может быть выше 132 Вт, поэтому на схеме дополнительно изображены пусковые промежуточные реле.
2. На плате котла есть колодки подключения, обозначенные М1, М2, М3... так вот колодка М3 предназначена для подключения насосов, но мощность подключаемых насосов не может быть выше 132 Вт, поэтому на схеме дополнительно изображены пусковые промежуточные реле.
Андрей.
Технический специалист BAXI.
Нижний Новгород.
Технический специалист BAXI.
Нижний Новгород.
-
Михаил11
- Новичок
- Сообщения: 8
- Зарегистрирован: 12 авг 2014, 14:48
Re: Premier Plus 300л. + LUNA Duo-tec MP 1.70
А как быть с контактами существующего датчика бойлера? Просто отсоединить?
И еще в нижней части бойлера есть отверстие заглушенное резиновой втулкой, под ней просто утеплитель это что?
И еще в нижней части бойлера есть отверстие заглушенное резиновой втулкой, под ней просто утеплитель это что?
-
BAXI - Volga
- Представитель BAXI

- Сообщения: 2335
- Зарегистрирован: 21 фев 2014, 00:20
- Откуда: Нижний Новгород
- Благодарил (а): 40 раз
- Поблагодарили: 212 раз
Re: Premier Plus 300л. + LUNA Duo-tec MP 1.70
Необходимо освободить гильзу под датчик, контакты здесь задействованы не будут. Вы вставляете погружной датчик 71408681* в гильзу и тянете его на плату.
В бойлере можно дополнительно установить электрический ТЭН 2,7 Квт - видимо речь о заглушке которая закрывает место установки ТЭНа.
В бойлере можно дополнительно установить электрический ТЭН 2,7 Квт - видимо речь о заглушке которая закрывает место установки ТЭНа.
Андрей.
Технический специалист BAXI.
Нижний Новгород.
Технический специалист BAXI.
Нижний Новгород.
-
Михаил11
- Новичок
- Сообщения: 8
- Зарегистрирован: 12 авг 2014, 14:48
Re: Premier Plus 300л. + LUNA Duo-tec MP 1.70
Данное отверстие запенено, заглушка что то типа силикона, деформированное пеной, которая в свою очередь вышла из данного отверстия(в небольшом кол-ве)!!
У вас нет необходимых прав для просмотра вложений в этом сообщении.
-
BAXI - Volga
- Представитель BAXI

- Сообщения: 2335
- Зарегистрирован: 21 фев 2014, 00:20
- Откуда: Нижний Новгород
- Благодарил (а): 40 раз
- Поблагодарили: 212 раз
Re: Premier Plus 300л. + LUNA Duo-tec MP 1.70
Можно выложить фото?
Андрей.
Технический специалист BAXI.
Нижний Новгород.
Технический специалист BAXI.
Нижний Новгород.
-
Bahus
- Главный администратор

- Сообщения: 13238
- Зарегистрирован: 24 июл 2012, 13:05
- Откуда: Пенза
- Мой котел: Пензенская ТЭЦ-1
- Благодарил (а): 85 раз
- Поблагодарили: 1734 раза
- Возраст: 46
Re: Premier Plus 300л. + LUNA Duo-tec MP 1.70
Только что любовался на 200-литровый. Нет там дырок никаких, да и не было никогда.
Разве что новая модификация какая....
Разве что новая модификация какая....
В ЛС отвечаю только по работе форума
Илья Бахталин
АСЦ BAXI "Санфорт". г. Пенза
Подключение к Зонту - bahus1980
Илья Бахталин
АСЦ BAXI "Санфорт". г. Пенза
Подключение к Зонту - bahus1980
-
Михаил11
- Новичок
- Сообщения: 8
- Зарегистрирован: 12 авг 2014, 14:48
Re: Premier Plus 300л. + LUNA Duo-tec MP 1.70
День добрый! Извините что пропал, уезжал в командировку!
И так вернемся к нашим...
Фото отверстия прилагаю!!
И так вернемся к нашим...
Фото отверстия прилагаю!!
У вас нет необходимых прав для просмотра вложений в этом сообщении.
-
Михаил11
- Новичок
- Сообщения: 8
- Зарегистрирован: 12 авг 2014, 14:48
Re: Premier Plus 300л. + LUNA Duo-tec MP 1.70
И еще!!!
У вас нет необходимых прав для просмотра вложений в этом сообщении.
-
BAXI-Ural
- Представитель BAXI

- Сообщения: 4493
- Зарегистрирован: 07 авг 2012, 18:49
- Откуда: Екатеринбург
- Благодарил (а): 6 раз
- Поблагодарили: 377 раз
- Возраст: 57
Re: Premier Plus 300л. + LUNA Duo-tec MP 1.70
Технологическая заглушка. Отверстие используется для "запенивания" теплоизоляции...
Ярослав Грабик
технический специалист BAXI, Екатеринбург
технический специалист BAXI, Екатеринбург
-
Михаил11
- Новичок
- Сообщения: 8
- Зарегистрирован: 12 авг 2014, 14:48
Re: Premier Plus 300л. + LUNA Duo-tec MP 1.70
BAXI-Ural писал(а):Технологическая заглушка. Отверстие используется для "запенивания" теплоизоляции...
Большое спасибо за разъяснения!! Успокоили так сказать!!!
И последний вопросик, каким образом осуществляется слив воды с бойлера??
-
Михаил11
- Новичок
- Сообщения: 8
- Зарегистрирован: 12 авг 2014, 14:48
Re: Premier Plus 300л. + LUNA Duo-tec MP 1.70
Куда деть термостат, установленный штатно??? Можно ли наращивать провод бойлера?BAXI - ПФО писал(а):Необходимо освободить гильзу под датчик, контакты здесь задействованы не будут. Вы вставляете погружной датчик 71408681* в гильзу и тянете его на плату.
В бойлере можно дополнительно установить электрический ТЭН 2,7 Квт - видимо речь о заглушке которая закрывает место установки ТЭНа.
-
RADAR
- Местный аксакал
- Сообщения: 6798
- Зарегистрирован: 25 июл 2012, 00:33
- Откуда: г.Кострома
- Мой котел: Gepard 23MTV19
- Благодарил (а): 114 раз
- Поблагодарили: 421 раз
- Возраст: 51
Re: Premier Plus 300л. + LUNA Duo-tec MP 1.70
штатный к примеру можно выкинуть в мусор..наращивать можно..