BAXI битермики + доп.насос
- 
				Olegbez
 
- Старожил
- Сообщения: 611
- Зарегистрирован: 13 сен 2012, 19:17
- Откуда: Казахстан
- Благодарил (а): 10 раз
- Поблагодарили: 85 раз
- Возраст: 38
BAXI битермики + доп.насос
Своей голове покоя не даю, и вот о чем я размышляю. Если возникает необходимость установить дополнительный цирк. насос повышенной мощности на обратке на битермическом котле (пусть будет MAIN FOUR) получается интересная ситуация. 
В режиме "зима" когда хозяин откроет кран горячей воды штатный насос (тот что в котле) - отключится и холодная вода проходя через единый теплообменник будет снимать тепло на ГВС. Если же доп.насос будет независимо включен в сеть при постоянной работе, часть тепла будет уходить в СО, так? Если так то получиться что - клиент не дополучит требуемую температуру ГВС.
Теперь вопрос допускается ли подсоединение параллельное подключение насосов на плату котла? Выдержит ли нагрузку доп насоса в 120 Вт.?
Тем самым добиться: автоматического отключения двух насосов в режиме ГВС. Если мои рассуждения ошибочны - поправьте, можете даже поругать за задротство...
			
			
									
						В режиме "зима" когда хозяин откроет кран горячей воды штатный насос (тот что в котле) - отключится и холодная вода проходя через единый теплообменник будет снимать тепло на ГВС. Если же доп.насос будет независимо включен в сеть при постоянной работе, часть тепла будет уходить в СО, так? Если так то получиться что - клиент не дополучит требуемую температуру ГВС.
Теперь вопрос допускается ли подсоединение параллельное подключение насосов на плату котла? Выдержит ли нагрузку доп насоса в 120 Вт.?
Тем самым добиться: автоматического отключения двух насосов в режиме ГВС. Если мои рассуждения ошибочны - поправьте, можете даже поругать за задротство...
- 
				BAXI-Ural
 
- Представитель BAXI 
- Сообщения: 4505
- Зарегистрирован: 07 авг 2012, 18:49
- Откуда: Екатеринбург
- Благодарил (а): 6 раз
- Поблагодарили: 373 раза
- Возраст: 56
BAXI битермики + доп.насос
Нормально надо делать систему отопления, считать гидравлику - тогда не понадобится "дополнительный насос"...
А если приспичило стасть как, то ставьте байпас - гидрострелку...
			
			
									
						А если приспичило стасть как, то ставьте байпас - гидрострелку...
Ярослав Грабик
технический специалист BAXI, Екатеринбург
			
						технический специалист BAXI, Екатеринбург
- 
				Bahus
 
- Главный администратор 
- Сообщения: 12486
- Зарегистрирован: 24 июл 2012, 13:05
- Откуда: Пенза
- Мой котел: Пензенская ТЭЦ-1
- Благодарил (а): 78 раз
- Поблагодарили: 1612 раз
- Возраст: 45
BAXI битермики + доп.насос
Олег, а кто мешает запитать второй насос с внешнего источника. Подключить через реле, которое будет рвать питание по сигналу датчика протока ГВС котла?
			
			
									
						- 
				Olegbez
 
- Старожил
- Сообщения: 611
- Зарегистрирован: 13 сен 2012, 19:17
- Откуда: Казахстан
- Благодарил (а): 10 раз
- Поблагодарили: 85 раз
- Возраст: 38
BAXI битермики + доп.насос
Есть один тестовый маинфор, к нему подключу доп насос протестирую. Ярослав,я из числа практиков, каждый 3 -5 битермич. котел, запущенный нами к действующим системам отопления уже оборудован доп насосами порой характеристиками ниже чем собственный в котле. Не раз были звонки от клиентов типа "почему стоит режим лето, а батареи горячие", поэтому пришла мысль а почему бы их не запаралелить. В свое время тоже все кричали что протермовску полутурбо нереально связать со слимам, а сейчас без нее уже не обойтись.
			
			
									
						- 
				BAXI - Volga
 
- Представитель BAXI 
- Сообщения: 2339
- Зарегистрирован: 21 фев 2014, 00:20
- Откуда: Нижний Новгород
- Благодарил (а): 40 раз
- Поблагодарили: 211 раз
BAXI битермики + доп.насос
Доп насос в 120 Вт плата однозначно не потянет
Правильно рассчитанная и смонтированная система отопления не требует доп насоса...
			
			
									
						Правильно рассчитанная и смонтированная система отопления не требует доп насоса...
Андрей.
Технический специалист BAXI.
Нижний Новгород.
			
						Технический специалист BAXI.
Нижний Новгород.
- 
				Olegbez
 
- Старожил
- Сообщения: 611
- Зарегистрирован: 13 сен 2012, 19:17
- Откуда: Казахстан
- Благодарил (а): 10 раз
- Поблагодарили: 85 раз
- Возраст: 38
BAXI битермики + доп.насос
Андрей, продавая клиенту котел, и расспрашивая его о текущей системе отопления, складывается впечатление что у него там все ОК, по факту запуска когда видишь обстановку воочию, понимаешь что так как сделана система наврятли потащит собственный насос. Тенденция последних годов такова, что клиенты самостоятельно занимаются монтажом СО. Зчастую делая систему последовательной от радиатора к радиатору без перемычек, туда же сажая теплые полы и прочее. Ясно что зависимая система с большим сопротивлением делает дома температурный дискомфорт, в таких случаях доп. насос здорово помогает.  
Крылатая фраза "У соседа все так же сделано, и все работает, дети дома в трусах бегают..."
			
			
									
						- 
				Bahus
 
- Главный администратор 
- Сообщения: 12486
- Зарегистрирован: 24 июл 2012, 13:05
- Откуда: Пенза
- Мой котел: Пензенская ТЭЦ-1
- Благодарил (а): 78 раз
- Поблагодарили: 1612 раз
- Возраст: 45
- 
				Olegbez
 
- Старожил
- Сообщения: 611
- Зарегистрирован: 13 сен 2012, 19:17
- Откуда: Казахстан
- Благодарил (а): 10 раз
- Поблагодарили: 85 раз
- Возраст: 38
BAXI битермики + доп.насос
Посмотрел на фото что сам выложил, и как то приуныл  
			
			
													
					Последний раз редактировалось Bahus 20 май 2015, 12:06, всего редактировалось 1 раз.
					
Причина: С Вашего позволения фотку под спойлер запихал.
			
						Причина: С Вашего позволения фотку под спойлер запихал.
- 
				plehan
 
- Дока по нормативам
- Сообщения: 3374
- Зарегистрирован: 04 мар 2014, 23:50
- Откуда: Астрахань
- Благодарил (а): 75 раз
- Поблагодарили: 267 раз
BAXI битермики + доп.насос
- бывает еще вот так!Olegbez писал(а):Посмотрел на фото что сам выложил, и как то приуныл
Ооо!.. Етит твою мать, профессор! Иди сюда, выпей с нами!
			
						- 
				Olegbez
 
- Старожил
- Сообщения: 611
- Зарегистрирован: 13 сен 2012, 19:17
- Откуда: Казахстан
- Благодарил (а): 10 раз
- Поблагодарили: 85 раз
- Возраст: 38
BAXI битермики + доп.насос
Plehan, это фото из рубрики рядом "Покритикуйте систему отопления..." )))
			
			
									
						- 
				plehan
 
- Дока по нормативам
- Сообщения: 3374
- Зарегистрирован: 04 мар 2014, 23:50
- Откуда: Астрахань
- Благодарил (а): 75 раз
- Поблагодарили: 267 раз
BAXI битермики + доп.насос
- Нет нет это как раз в эту ветку , на фото два доп. насоса . Думаю это еще не предел народной мыслиOlegbez писал(а):Plehan, это фото из рубрики рядом "Покритикуйте систему отопления..." )))

Ооо!.. Етит твою мать, профессор! Иди сюда, выпей с нами!
			
						- 
				Ikarus-stv
 
- Новичок
- Сообщения: 5
- Зарегистрирован: 27 авг 2016, 07:48
- Мой котел: Baxi mainfour 24
BAXI битермики + доп.насос
Olegbez, сообщите пожалуйста результаты эксперимента.Olegbez писал(а): Есть один тестовый маинфор, к нему подключу доп насос протестирую. Ярослав,я из числа практиков, каждый 3 -5 битермич. котел, запущенный нами к действующим системам отопления уже оборудован доп насосами порой характеристиками ниже чем собственный в котле.
Уважаемые специалисты, у моих знакомых готовая система отопления с mainfour24 и доп. насосом (делал не я). Дети в трусах бегают, единственная проблема - в режиме ГВС при включенном внешнем насосе плохо греется вода. Если выключить внешний насос - все нормально. Просят сделать так, чтобы внешний насос работал только в режиме отопления.
Думаю параллельно штатному насосу подключить контактор, например иек км 20-20 (мощность при включении - 14 ВА, при удержании 4,5 ВА), контакты контактора включить в разрыв цепи питания внешнего насоса.
Прошу оценить работоспособность решения - будет ли при этом у меня внешний насос работать только в режиме отопления, выдержит ли электроника котла дополнительные 14/4,5 вт нагрузки.
Заранее спасибо!
- 
				Olegbez
 
- Старожил
- Сообщения: 611
- Зарегистрирован: 13 сен 2012, 19:17
- Откуда: Казахстан
- Благодарил (а): 10 раз
- Поблагодарили: 85 раз
- Возраст: 38
BAXI битермики + доп.насос
На одном объекте сделали так, внутренний wilo отключили и штекер подсоединили к внешнему 25/80. Стало лучше. И автоматика его отключает при работе гвс. Мощность насоса - 170 вт
			
			
									
						- 
				Obormot
 
- Новичок
- Сообщения: 9
- Зарегистрирован: 27 сен 2017, 10:38
- Мой котел: Baxi Mainfour 240F
- Благодарил (а): 4 раза
BAXI битермики + доп.насос
Добрый день!
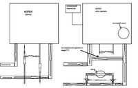
В доме установлен BAXI MAINFOUR 240F. Задумался над незначительной модернизацией системы отопления, дабы есть желание при меньших затратах на газ получить большую отдачу. Дом покупал готовый. В доме присутствуют теплые полы, отдельных термостатов и насосов на ТП нет. По факту отопление работает вполне сносно, единственное. в двух дальних комнатах второго этажа, которые идут в конце контура отопления, батареи немного прохладнее. Схему отопления описать не смогу, ибо данных нет. Прилагаю рисунок того, что я хочу сделать. Предполагается установка комнатного термостата и дополнительного насоса большей мощности (прокачка 150-200 л/мин). Доп.насос будет работать на постоянке независимо от работы котла. Так как термостат при достижении необходимой температуры полностью отрубает котел, в том числе и встроенный насос, есть опасение, что полы будут быстро остывать и затем будут дольше прогреваться (по полу проложено примерно метров 80 трубы). Соответственно, хочу доп. насос поставить чтобы теплоноситель все время циркулировал по системе, ну и благодаря большей скорости прокачки предполагается большая теплоотдача ибо доходя до котла теплоноситель не будет сильно остывать.
Соответственно, вопрос к профессионалам, приложенный вариант рабочий?
			
							
			
									
						В доме установлен BAXI MAINFOUR 240F. Задумался над незначительной модернизацией системы отопления, дабы есть желание при меньших затратах на газ получить большую отдачу. Дом покупал готовый. В доме присутствуют теплые полы, отдельных термостатов и насосов на ТП нет. По факту отопление работает вполне сносно, единственное. в двух дальних комнатах второго этажа, которые идут в конце контура отопления, батареи немного прохладнее. Схему отопления описать не смогу, ибо данных нет. Прилагаю рисунок того, что я хочу сделать. Предполагается установка комнатного термостата и дополнительного насоса большей мощности (прокачка 150-200 л/мин). Доп.насос будет работать на постоянке независимо от работы котла. Так как термостат при достижении необходимой температуры полностью отрубает котел, в том числе и встроенный насос, есть опасение, что полы будут быстро остывать и затем будут дольше прогреваться (по полу проложено примерно метров 80 трубы). Соответственно, хочу доп. насос поставить чтобы теплоноситель все время циркулировал по системе, ну и благодаря большей скорости прокачки предполагается большая теплоотдача ибо доходя до котла теплоноситель не будет сильно остывать.
Соответственно, вопрос к профессионалам, приложенный вариант рабочий?
- 
				RADAR
 
- Местный аксакал
- Сообщения: 6608
- Зарегистрирован: 25 июл 2012, 00:33
- Откуда: г.Кострома
- Мой котел: Gepard 23MTV19
- Благодарил (а): 108 раз
- Поблагодарили: 406 раз
- Возраст: 50
BAXI битермики + доп.насос
очень интересно..Obormot писал(а): есть желание при меньших затратах на газ получить большую отдачу.
 какими методами планируете сделать?
  какими методами планируете сделать?комнатный термостат даст небольшую экономию, но не большую отдачу..
дополнительный насос лишит горячей воды..
Отправлено спустя 2 минуты 17 секунд:
аа..перемычка..она будет выполнять роль гидрострелки, только диаметр нужен её такой же, как и трубы дополнительного насоса, тогда ГВС останется..
- 
				plehan
 
- Дока по нормативам
- Сообщения: 3374
- Зарегистрирован: 04 мар 2014, 23:50
- Откуда: Астрахань
- Благодарил (а): 75 раз
- Поблагодарили: 267 раз
BAXI битермики + доп.насос
Увж. РАДАР ,зачем так сразу   Obormot, - все правильно делаете , ставьте насос и по мощнее где то 25-100 или 120 . Думаю на глаз самый раз   , как сделаете напишите подробный тех. отчет о проделанной работе и о  результатах , что удалось воплотить ,а что нужно доработать ! С удовольствием буду ждать
  Obormot, - все правильно делаете , ставьте насос и по мощнее где то 25-100 или 120 . Думаю на глаз самый раз   , как сделаете напишите подробный тех. отчет о проделанной работе и о  результатах , что удалось воплотить ,а что нужно доработать ! С удовольствием буду ждать  
			
			
									
						 Obormot, - все правильно делаете , ставьте насос и по мощнее где то 25-100 или 120 . Думаю на глаз самый раз   , как сделаете напишите подробный тех. отчет о проделанной работе и о  результатах , что удалось воплотить ,а что нужно доработать ! С удовольствием буду ждать
  Obormot, - все правильно делаете , ставьте насос и по мощнее где то 25-100 или 120 . Думаю на глаз самый раз   , как сделаете напишите подробный тех. отчет о проделанной работе и о  результатах , что удалось воплотить ,а что нужно доработать ! С удовольствием буду ждать  
Ооо!.. Етит твою мать, профессор! Иди сюда, выпей с нами!
			
						- 
				Obormot
 
- Новичок
- Сообщения: 9
- Зарегистрирован: 27 сен 2017, 10:38
- Мой котел: Baxi Mainfour 240F
- Благодарил (а): 4 раза
BAXI битермики + доп.насос
Я по последним ответам не совсем понял, моя идея имеет право на жизнь или вы надо мной стебетесь? И второй вопрос, почему доп.насос лишит меня ГВС?
Объясню причину моего желания установки доп.насоса на постоянную циркуляцию в системе при установке комнатного термостата: у двоих знакомых дома построены по аналогичному моему проекту, разводку отопления делали те же люди и по той же схеме. Оба поставили комнатные термостаты и у обоих одинаковая проблема - от теплого пола очень низкая теплоотдача. Я предполагаю, что котел просто не успевает протягивать полы из-за того, что термостат останавливает работу котла. В итоге у меня дома по первому этажу работают на обогрев только полы, батареи даже не включаю, ибо нет смысла. У них же греет все. Но при примерно одинаковых затратах на газ, более комфортно у меня дома, потому как мой пол теплый, а у них даже прохладный.
			
			
									
						Объясню причину моего желания установки доп.насоса на постоянную циркуляцию в системе при установке комнатного термостата: у двоих знакомых дома построены по аналогичному моему проекту, разводку отопления делали те же люди и по той же схеме. Оба поставили комнатные термостаты и у обоих одинаковая проблема - от теплого пола очень низкая теплоотдача. Я предполагаю, что котел просто не успевает протягивать полы из-за того, что термостат останавливает работу котла. В итоге у меня дома по первому этажу работают на обогрев только полы, батареи даже не включаю, ибо нет смысла. У них же греет все. Но при примерно одинаковых затратах на газ, более комфортно у меня дома, потому как мой пол теплый, а у них даже прохладный.
- 
				plehan
 
- Дока по нормативам
- Сообщения: 3374
- Зарегистрирован: 04 мар 2014, 23:50
- Откуда: Астрахань
- Благодарил (а): 75 раз
- Поблагодарили: 267 раз
BAXI битермики + доп.насос
Исключительно - стебусь ! Причина, вы кроили ,не получилось , опять хотите кроить ! У вас должен быть Гидравлический разделитель ! 
			
			
									
						- особенности работы котла !Obormot писал(а): почему доп.насос лишит меня ГВС?
Ооо!.. Етит твою мать, профессор! Иди сюда, выпей с нами!
			
						- 
				Bahus
 
- Главный администратор 
- Сообщения: 12486
- Зарегистрирован: 24 июл 2012, 13:05
- Откуда: Пенза
- Мой котел: Пензенская ТЭЦ-1
- Благодарил (а): 78 раз
- Поблагодарили: 1612 раз
- Возраст: 45
BAXI битермики + доп.насос
Правильно. И не будет работать. Термостат пусть уберут на неделю - всё сами увидятObormot писал(а): Оба поставили комнатные термостаты и у обоих одинаковая проблема - от теплого пола очень низкая теплоотдача
- 
				Obormot
 
- Новичок
- Сообщения: 9
- Зарегистрирован: 27 сен 2017, 10:38
- Мой котел: Baxi Mainfour 240F
- Благодарил (а): 4 раза
BAXI битермики + доп.насос
Хорошо, порекомендуйте, что можно сделать. Кроил не я, кроил застройщик (у всех троих один). Не понимал я тогда в этом, да и сейчас не особо, но пытливость ума покоя не дает.plehan писал(а): Причина, вы кроили ,не получилось , опять хотите кроить ! У вас должен быть Гидравлический разделитель !
- 
				RADAR
 
- Местный аксакал
- Сообщения: 6608
- Зарегистрирован: 25 июл 2012, 00:33
- Откуда: г.Кострома
- Мой котел: Gepard 23MTV19
- Благодарил (а): 108 раз
- Поблагодарили: 406 раз
- Возраст: 50
BAXI битермики + доп.насос
комнатный термостат и ТП - не совместимы..т.к. инертность ТП высокая - если сильно не углубляться..
			
			
									
						- 
				plehan
 
- Дока по нормативам
- Сообщения: 3374
- Зарегистрирован: 04 мар 2014, 23:50
- Откуда: Астрахань
- Благодарил (а): 75 раз
- Поблагодарили: 267 раз
BAXI битермики + доп.насос
- классика жанра типовая схема Г/Р за ним коллектор , а дальше ,что финансы покажут вариантов уйма !Obormot писал(а): порекомендуйте, что можно сделать
Ооо!.. Етит твою мать, профессор! Иди сюда, выпей с нами!
			
						- 
				Obormot
 
- Новичок
- Сообщения: 9
- Зарегистрирован: 27 сен 2017, 10:38
- Мой котел: Baxi Mainfour 240F
- Благодарил (а): 4 раза
BAXI битермики + доп.насос
Решил обойтись малой кровью. Обойдусь без термоса, штатный 83W насос котла заменю на 98W для лучшей прокачки системы.plehan писал(а): финансы покажут вариантов уйма !
- 
					- Похожие темы
- Ответы
- Просмотры
- Последнее сообщение
 
Кто сейчас на конференции
Сейчас этот форум просматривают: нет зарегистрированных пользователей и 0 гостей
 
				 
				 
				 
				 
				 
				




